

- Prix
- 321 274 €
Maison neuve • Pomponne (77)
- Nom et prix
- Terrain à bâtir () • 321 274 €
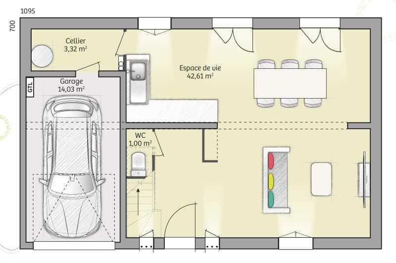
Pomponne : maison F5 (80 m²) en vente PROCHE DE PARIS - MAISON 5 PIÈCES NEUVE À vendre : à proximité du Transilien P (gare de Lagny-Thorigny, 25 min de Paris), Maisons Balency Dammartin-en-Goële vous propose cette maison de 5 pièces de 80 m² à Pomponne (77400). Son intérieur offre trois chambres, une cuisine et une salle de bains. Le terrain de la propriété s'étend sur 400 m². C'est une maison de 2 niveaux. Elle est neuve. L'École Primaire les Cornouillers se trouve à moins de 10 minutes à pied, tout comme une structure d'accueil pour la petite enfance. Niveau transports, il y a trois lignes de RER (A, E et B) ainsi que six gares à moins de 10 minutes en voiture. On trouve un tennis et trois commerces à proximité. Elle est à vendre pour la somme de 321 274 €. Contactez Sébastien DARTEVELLE (06-24-63-58-60) pour tout renseignement sur cette maison, sur les démarches à suivre ou sur les modalités de vente.












