

- Prix
- 374 000 €
Maison neuve • Lagny-sur-Marne (77)
- Nom et prix
- Terrain à bâtir Lagny-sur-Marne (77400) • 374 000 €
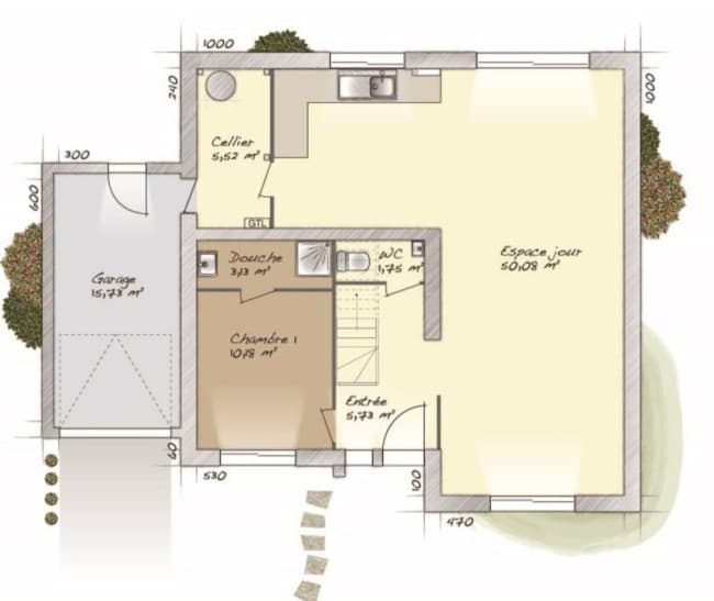
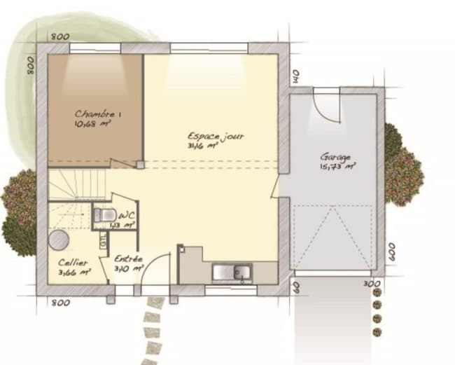
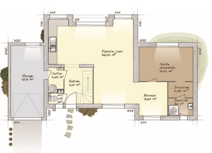
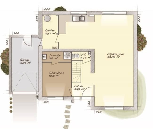
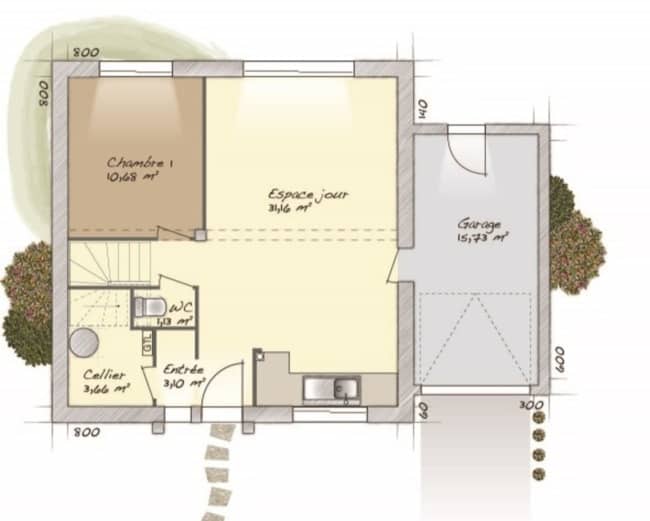
Lagny-sur-Marne : maison T6 (139 m²) à vendre MAISON 6 PIÈCES NEUVE Au pied du Transilien P (gare de Lagny-Thorigny, 25 min de Paris), en vente à Lagny-sur-Marne (77400), nous vous proposons cette maison de 6 pièces de 139 m². Son intérieur propose quatre chambres, une cuisine et deux salles de bains. Le terrain de la propriété est de 200 m². Cette maison comporte 2 niveaux. Elle est neuve. Il y a des établissements scolaires du primaire et du secondaire à moins de 10 minutes à pied, tout comme trois crèches. Côté transports en commun, on trouve deux lignes de RER (A et E) ainsi que sept gares à moins de 10 minutes en voiture. Il y a une bibliothèque, un bassin de natation, un tennis, des commerces, des boulangeries, des épiceries, un bureau de poste et deux supérettes à quelques minutes. Le marché Place du marché anime le quartier. Son prix de vente est de 374 000 €. N'hésitez pas à prendre contact avec Sébastien DARTEVELLE (06-24-63-58-60) pour toute information sur la maison ou sur les modalités de vente. Maisons Balency Dammartin-en-Goële est là pour vous accompagner dans tous vos projets immobiliers.











