

- Prix
- 515 000 €
Maison neuve • Antony (92)
- Nom et prix
- Terrain à bâtir Antony (92160) • 515 000 €
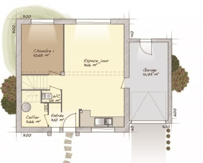
VENTE d'une maison F6 (98 m²) à Antony MAISON 6 PIÈCES NEUVE À deux pas du RER B (10 min de Paris), nous sommes ravis de vous présenter cette maison de 6 pièces de 98 m² et de 386 m² de terrain en vente à Antony (92160). Cette maison comporte 2 niveaux. Son intérieur propose quatre chambres, une cuisine et une salle de bains. La maison est neuve. Des écoles du primaire et du secondaire sont implantées à moins de 10 minutes à pied, tout comme huit structures d'accueil pour les enfants en bas âge. Côté transports en commun, on trouve la ligne de RER B (Antony) dans les alentours. Il y a une bibliothèque, un bassin de natation, des commerces, des boulangeries, trois supermarchés, une poissonnerie et des boucheries-charcuteries à proximité. Son prix de vente est de 515 000 €. Contactez Christophe MONTANIER (tél : 06-10-23-51-22) pour obtenir de plus amples informations sur cette maison.











