

- Prix
- 408 000 €
Maison neuve • Franconville (95)
- Nom et prix
- Terrain à bâtir Franconville (95130) • 408 000 €
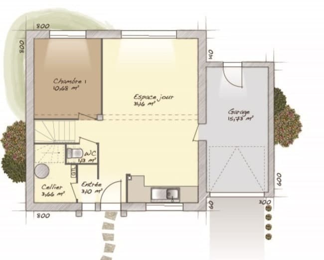
VENTE : maison T5 (98 m²) à Franconville MAISON 5 PIÈCES NEUVE Au pied du RER C (station Franconville-Le Plessis-Bouchard, 25 min de Paris), laissez vous charmer par à vendre à Franconville (95130), cette maison de 5 pièces de 98 m². Elle compte quatre chambres, une cuisine et une salle de bains. Le terrain de la propriété est de 379 m². Cette maison comporte 2 niveaux. Elle est neuve. Il y a des écoles (de la maternelle au lycée) à moins de 10 minutes à pied, tout comme une structure d'accueil pour les enfants en bas âge. Niveau transports, on trouve les lignes C et A du RER ainsi que 49 gares à moins de 10 minutes en voiture. Il y a une bibliothèque, un bassin de natation, deux tennis, un bowling, des commerces, un supermarché, des boulangeries, une poissonnerie et un bureau de poste dans les environs. Son prix de vente est de 408 000 €. Contactez notre agence (Aurelien MONTANIER : 06-24-66-88-34) pour toute information sur la maison. Maisons Balency Saint-Maur-des-Fossés est là pour vous accompagner dans toutes vos démarches.












