

- Prix
- 296 407 €
Maison neuve • Dieupentale (82)
- Nom et prix
- Terrain à bâtir Dieupentale (82170) • 296 407 €
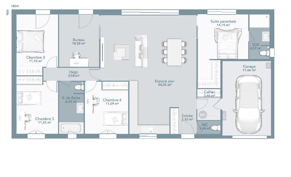
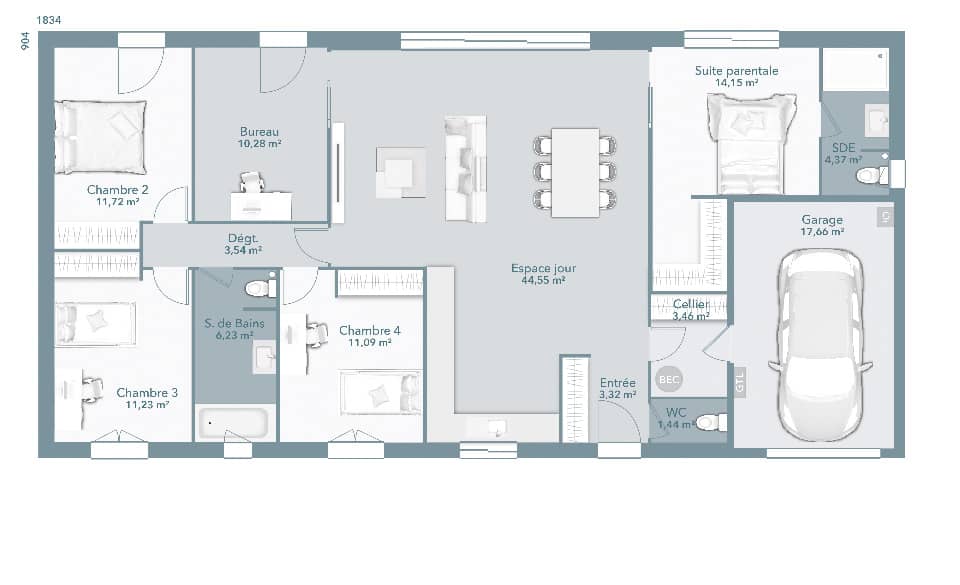
'Votre agence Maisons France Confort d'Aucamville vous propose ce beau projet maison + terrain à seulement 17 mn de la commune de DIEUPENTALE. Cette maison en RE2020 de 120 m² avec son toit plat et ses lignes très modernes s'adaptera parfaitement à l'architecture de votre région. Dessinée pour les grands terrains du sud de la France, ses volumes sont astucieusement répartis. Au rez-de-chaussée, cette maison dispose d'un espace jour de 59 m² avec un grand salon, une salle à manger et une cuisine semi-ouverte. Autre point fort de ce niveau, la suite parentale avec dressing et salle d'eau en option. À l'étage, le niveau est réservé aux enfants avec 2 chambres et leurs rangements, une salle de bains et un dégagement qui possède lui aussi un placard. Avec son architecture moderne et cubique, cette maison vous offre confort et bien-être au quotidien. Prix: 296407€ HF Pour toutes informations, contactez l'agence MAISONS FRANCE CONFORT d'Aucamville au 05.34.43.84.38'










