

- Prix
- 245 556 €
Maison neuve • Canals (82)
- Nom et prix
- Terrain à bâtir Canals (82170) • 245 556 €
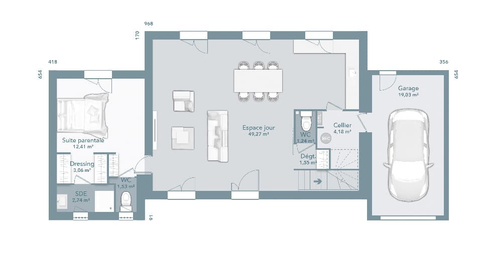
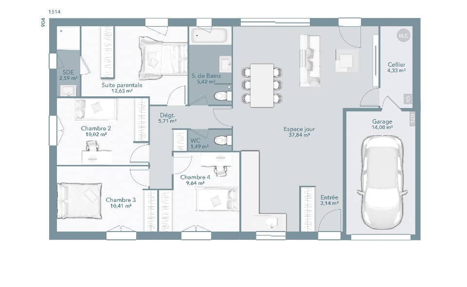
'Votre agence Maisons France Confort d'Aucamville vous propose ce beau projet maison + terrain à Canals La Bastide, c'est une maison élégante qui allie tradition et authenticité à l'image des maisons du sud de la France. Dans sa composition de 110+20 m² elle offre de beaux espaces lumineux et fonctionnels : un espace jour de près de 50 m² avec d'un côté, des WC, un cellier et un garage en option et de l'autre la possibilité d'agrandir avec une suite parentale en option de 20 m² composée d'une chambre, d'un dressing et d'une salle d'eau avec WC séparé. À l'étage, on retrouve aussi de beaux espaces avec une salle de bains de plus de 6 m² et 3 chambres de plus de 11 m² dont une suite parentale avec dressing et salle d'eau en option. Confort et bien-être assurés dans cette maison typique du sud ! Pour toutes informations, contactez l'agence MAISONS FRANCE CONFORT d'Aucamville au 05.34.43.84.38' Prix: 245.556 € HF










