

- Prix
- 179 690 €
Maison neuve • ESBLY (77)
- Nom et prix
- Projet de construction d'une maison 110 m² avec terrain à ESBLY (77) • 179 690 €
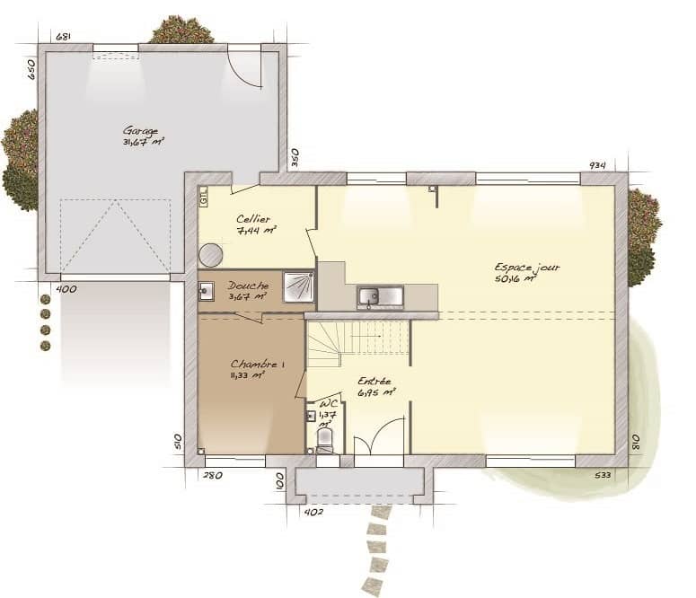
A ESBLY sur un terrain de 450 m², MAISONS SESAME vous propose de réaliser cette maison neuve d'une surface de 110 m² habitables avec 4 chambres. Le modèle AMETHYSTE 110 GI est une maison à deux niveaux de 110 m², offrant un espace de vie agréable et bien agencé. Au rez-de-chaussée, vous trouverez un grand séjour lumineux ouvert sur une cuisine fonctionnelle, créant un espace de vie convivial. Ce niveau est également doté d’un WC et d’un accès au garage de 14 m², offrant un espace de stockage ou de stationnement pratique. À l’étage, les quatre chambres sont idéalement réparties, ainsi qu’une salle de bains comprenant une baignoire. Un beau dégagement à l’étage pourra accueillir un espace bureau pour le télétravail ou bien encore un espace ""boudoir"", offrant ainsi une belle flexibilité d’aménagement. Le modèle AMETHYSTE 110 GI combine ainsi confort, praticité et espace pour répondre aux besoins d’une famille moderne. MAISONS SÉSAME vous propose les prestations suivantes : - Plans des maisons modulables et adaptables selon vos besoins et les spécificités de votre terrain - Large choix de systèmes de chauffage performants et économes en énergie - Sélection de matériaux de qualité garantissant confort et durabilité - Accompagnement sur-mesure pour la recherche et l’acquisition de votre terrain - Construction conforme à la réglementation en vigueur et à la norme RE2020 - Maisons certifiées NF HABITAT, gage de qualité, de performance et de confort Informations du terrain : Magnifique terrain plat, idéalement situé dans un secteur pavillonnaire avec la gare à pied ! Demandez une étude gratuite et personnalisée de votre projet de construction ! Étude gratuite de votre projet de construction ! De nombreux terrains disponibles dans votre secteur. Informations légales : Maisons Sésame, constructeur de maisons individuelles, propose une sélection de terrains en collaboration avec ses partenaires fonciers, sous réserve de disponibilité. Il n’agit pas en tant que mandataire pour la vente de ces terrains. Nos maisons, certifiées NF Habitat et conformes à la réglementation thermique en vigueur, vous garantissent un habitat durable et économe en énergie. Découvrez un large choix de modèles adaptés aux besoins de toute la famille. Informations tarifaires : Les prix indiqués sont donnés à titre indicatif et n’incluent pas les frais annexes (frais de notaire, raccordements, etc.). Les visuels et prix présentés sont non contractuels. Pour plus de détails, consultez nos conditions en agence. N° ORIAS IOBSP 13007108 – RCS Versailles 388 867 426. Les informations sur les risques auxquels ce bien est exposé sont disponibles sur le site Géorisques : www.georisques.gouv.fr Cette annonce a été créée et diffusée avec le logiciel VITAHOME. Contactez Jérémy CAYOUN au 06 14 48 62 27 (Maisons Sésame).










