

- Prix
- 341 674 €
Maison neuve • Esbly (77)
- Nom et prix
- Terrain à bâtir () • 341 674 €
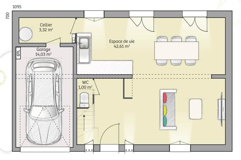
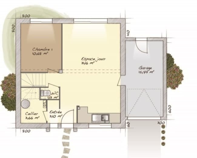
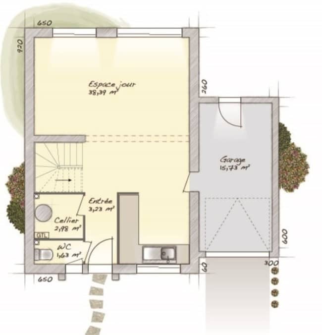
Maison F5 (80 m²) à vendre à Esbly PROCHE DE MONTREUIL - MAISON 5 PIÈCES NEUVE À 250 m de la gare, à vendre à Esbly (77450), notre agence Maisons Balency Dammartin-en-Goële est heureuse de vous proposer cette maison de 5 pièces de 80 m². Cette maison comporte 2 niveaux. Son intérieur comporte trois chambres, une cuisine et une salle de bains. Cette maison est neuve. Le terrain de la propriété est de 420 m². L'École Élémentaire du Centre, l'École Maternelle les Couleurs et le Collège Louis Braille se trouvent à moins de 10 minutes à pied, tout comme deux crèches. Niveau transports, il y a la gare Esbly dans un rayon de 1 km, positionnant cette maison à 30 min de Paris en transilien. On trouve un tennis, des commerces, trois boulangeries, un supermarché, un bureau de poste et une boucherie-charcuterie à proximité du logement. Son prix de vente est de 341 674 €. Prenez contact avec notre agence (Sébastien DARTEVELLE : 06-24-63-58-60) pour toute question sur la maison ou sur les démarches à suivre.











