

- Prix
- 406 274 €
Maison neuve • Coupvray (77)
- Nom et prix
- Terrain à bâtir () • 406 274 €
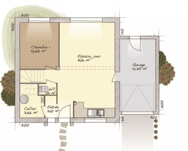
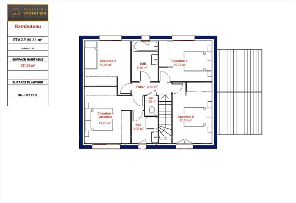
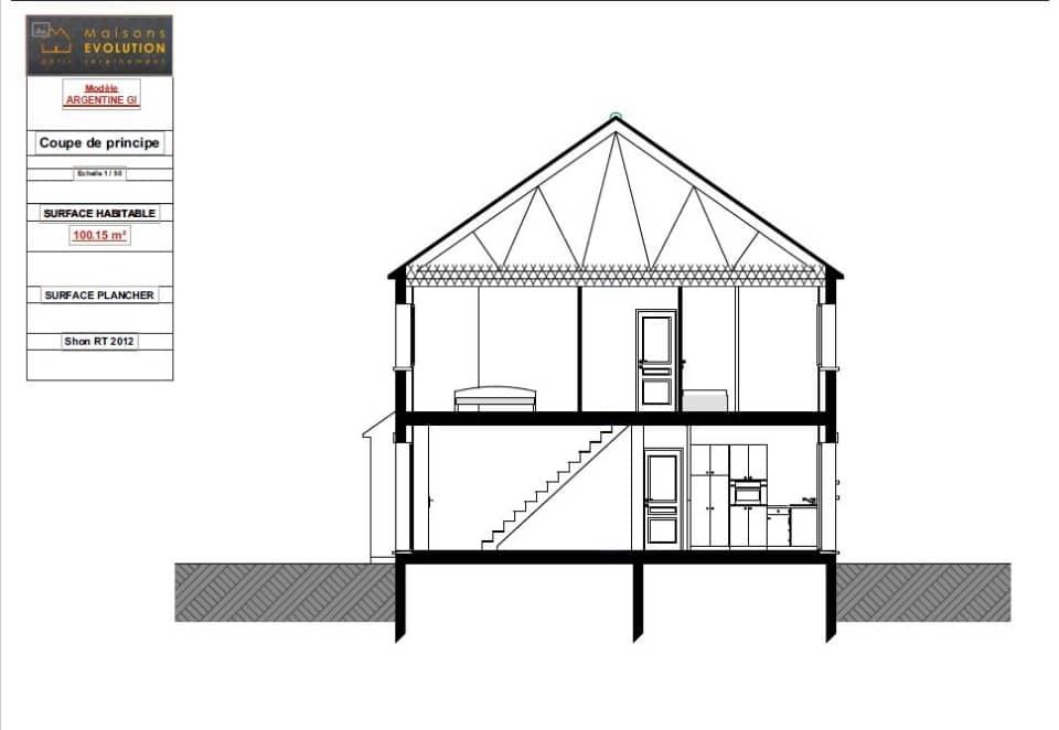
Maison T6 (98 m²) en vente à Coupvray MAISON 6 PIÈCES NEUVE - PROCHE DE MONTREUIL En vente : à côté de la gare d'Esbly (Paris à 30 min avec le Transilien P), nous sommes heureux de vous proposer cette maison de 6 pièces de 98 m² à Coupvray (77700). Son intérieur dispose de quatre chambres, d'une cuisine et d'une salle de bains. Le terrain de la propriété est de 450 m². Cette maison comporte 2 niveaux. Elle est neuve. Il y a l'École Élémentaire Francis et Odette Teisseyre, l'École Maternelle Francis et Odette Teisseyre, le Collège Louis Braille et l'École Primaire Jean-Louis Etienne à moins de 10 minutes à pied. Niveau transports en commun, on trouve la ligne de RER A (Chessy-Marne-La-Vallée) ainsi que huit gares à moins de 10 minutes en voiture. On trouve trois tennis, un bassin de natation, deux boulangeries et un supermarché à proximité de la maison. Elle est à vendre pour la somme de 406 274 €. Contactez Sébastien DARTEVELLE (06-24-63-58-60) pour toute question sur la maison, sur les démarches à suivre ou sur les modalités de vente. Maisons Balency Dammartin-en-Goële est là pour vous accompagner dans tous vos projets immobiliers.












