

- Prix
- 224 500 €
Maison neuve • Doue (77)
- Nom et prix
- Terrain à bâtir Doue (77510) • 224 500 €
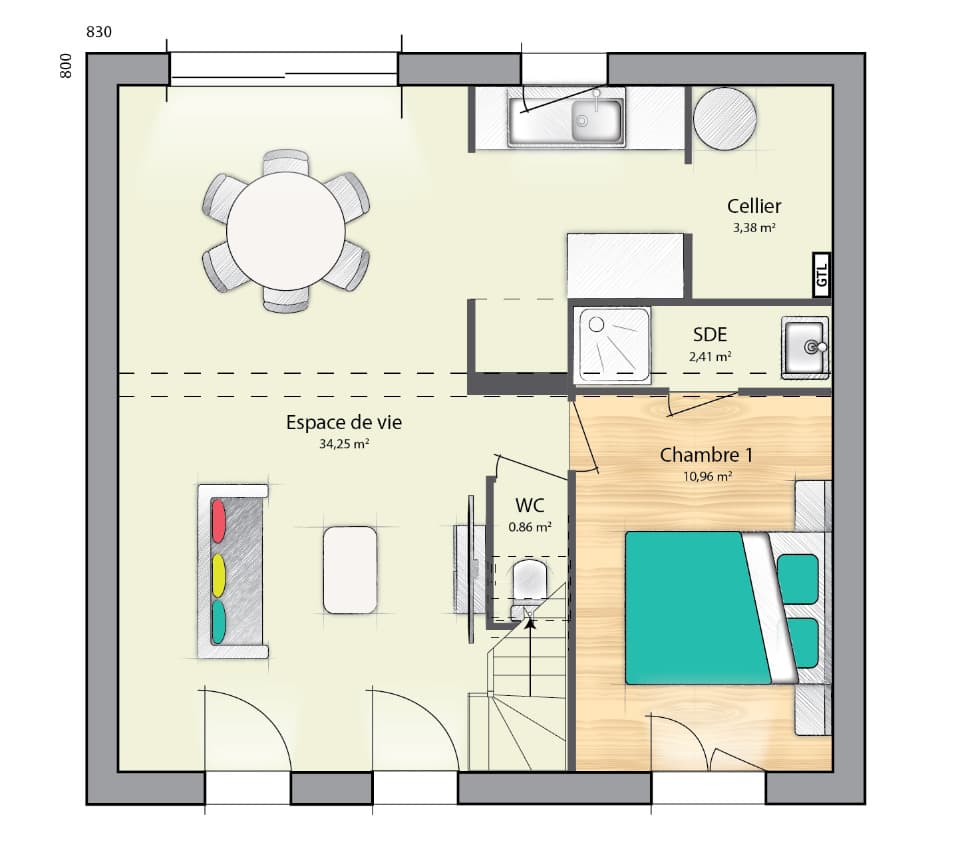
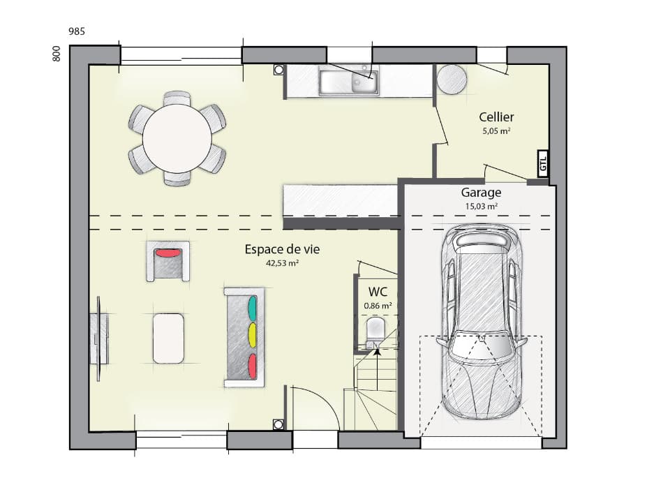
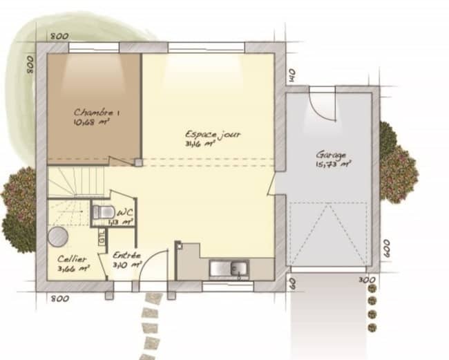
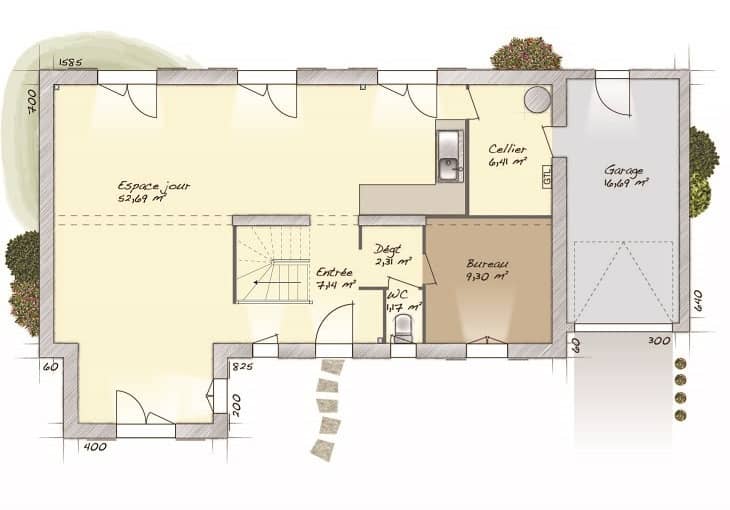
Contactez Guillaume Bordes de l'agence Maisons Evolution de Mareuil-lès-Meaux au 06.22.93.94.71 pour avoir plus d'informations sur ce projet. Jolie maison traditionnelle à étage de 102 m² habitables idéalement située sur la commune de Doue. Elle se compose de 5 chambres au total (dont une au rez-de-chaussée) de 2 salles de bains, de 2 WC et d'un grand salon-séjour lumineux avec cuisine ouverte. Les plans sont modifiables selon vos souhaits, en agence ou visioconférence. Nous vous proposons un véritable accompagnement de qualité tout au long de votre projet. Dessinons ensemble votre future maison ! Tel: 06.22.93.94.71











