

- Prix
- 290 000 €
Maison neuve • Cambronne-lès-Clermont (60)
- Nom et prix
- Terrain à bâtir () • 290 000 €
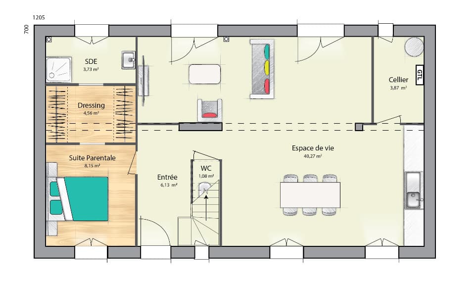
Venez concevoir votre maison à CAMBRONNE LES CLERMONT (60) d'une superficie de 509 m²,plat, avec belle façade constructible de 13.00 ml, Exemple de projet maison de plain pied de 85 m2 loi Carrez avec un garage accolé. Tous nos projets sont entièrement réalisés sur-mesure, de nombreuses prestations incluses: baies coulissantes en aluminium, volets roulants intégrés à la maçonnerie (non-apparents) motorisés. Entrée, cuisine, pièce de vie, cellier et pièces d'eau carrelés, maison prête à décorer, clef en main. Pompe à chaleur ou pompe à chaleur hybride (gaz) dernière génération (classe énergétique A+), plancher chauffant RDC (et ETAGE), sèche-serviettes, plusieurs choix de menuiseries intérieures, construction en brique. RE 2020. Projet terrain + maison + frais annexes. Pour tout renseignement contacter XAVIER de l'agence Maisons France Confort : 06/16/27/53/27










