

- Prix
- 222 000 €
Maison neuve • Clermont (60)
- Nom et prix
- Terrain à bâtir Clermont (60600) • 222 000 €
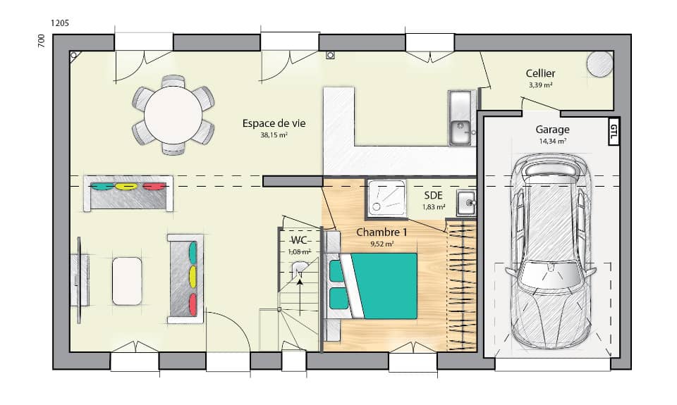
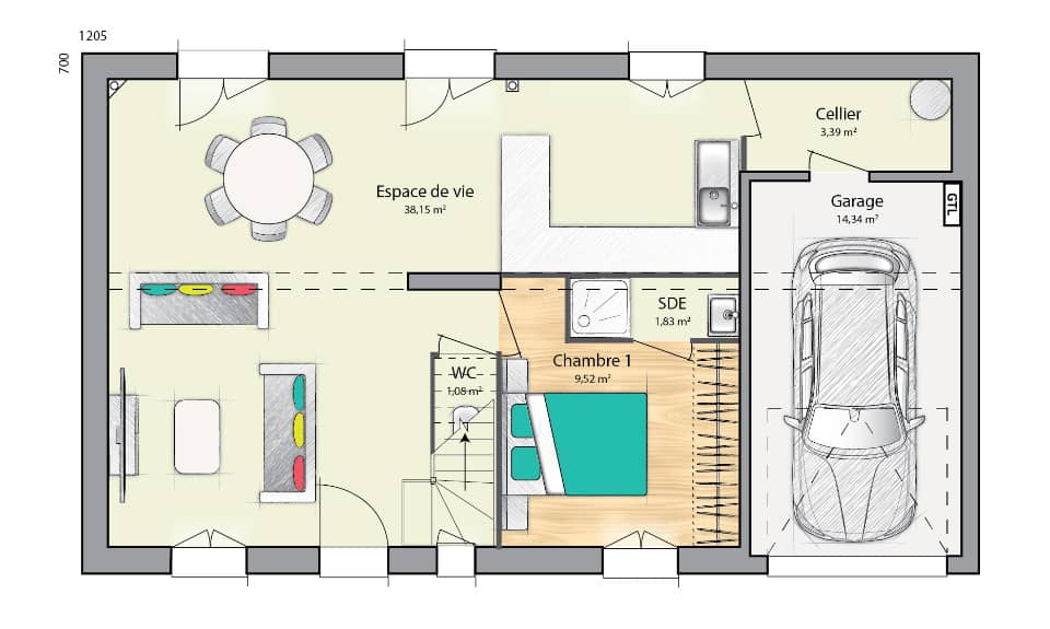
Maison de plain pied , située à 10 minutes de la gare de Clermont . 2 chambres avec rangements intégrés , séjour traversant , cellier et garage , salle d eau équipée . Nombreuses prestations incluses : Carrelage 45x45 , packs alarmes et domotiques , baie aluminium .. Accompagnement personnalisé et intégral : Financement , étude technique du terrain , gestion administrative . Rendez vous en agence ou à votre domicile . VERON ANTHONY /07/77/85/58/88/











