

- Prix
- 395 000 €
Maison neuve • Lamorlaye (60)
- Nom et prix
- Terrain à bâtir Lamorlaye (60260) • 395 000 €
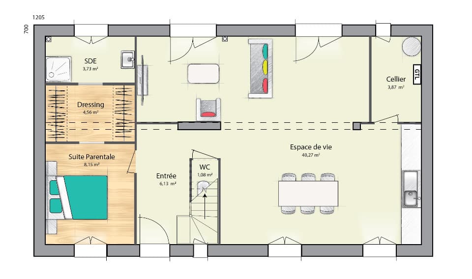
VENEZ REALISER VOTRE PROJET DE CONSTRUCTION AVEC MAISONS FRANCE CONFORT sur un Terrain à bâtir sur la charmante commune de COYE LA FORET, Commune prisée située sur le secteur de LAMORLAYE, d'une superficie de 420 m²,plat, idéalement situé, avec une belle façade. Exemple de projet maison avec un comble aménagé, d'une surface de 90 m² avec 4 chambres dont 1 suite parentale au rez de chaussée, 3 chambre et 1 salle de bain à l'étage. Avec un garage accolé. Tous nos projets sont entièrement réalisés sur-mesure, de nombreuses prestations incluses: baies coulissantes en aluminium, volets roulants intégrés à la maçonnerie (non-apparents) motorisés. Entrée, cuisine, pièce de vie, cellier et pièces d'eau carrelés, maison prête à décorer, clef en main. Pompe à chaleur ou pompe à chaleur hybride (gaz) dernière génération (classe énergétique A+), plancher chauffant RDC (et ETAGE), sèche-serviettes, plusieurs choix de menuiseries intérieures, construction en brique. RE 2020. Projet terrain + maison + frais annexes. Pour tout renseignement contacter XAVIER de l'agence Maisons France Confort : 06 16 27 53 27










