

- Prix
- 330 000 €
Maison neuve • Rosières (60)
- Nom et prix
- Terrain à bâtir () • 330 000 €
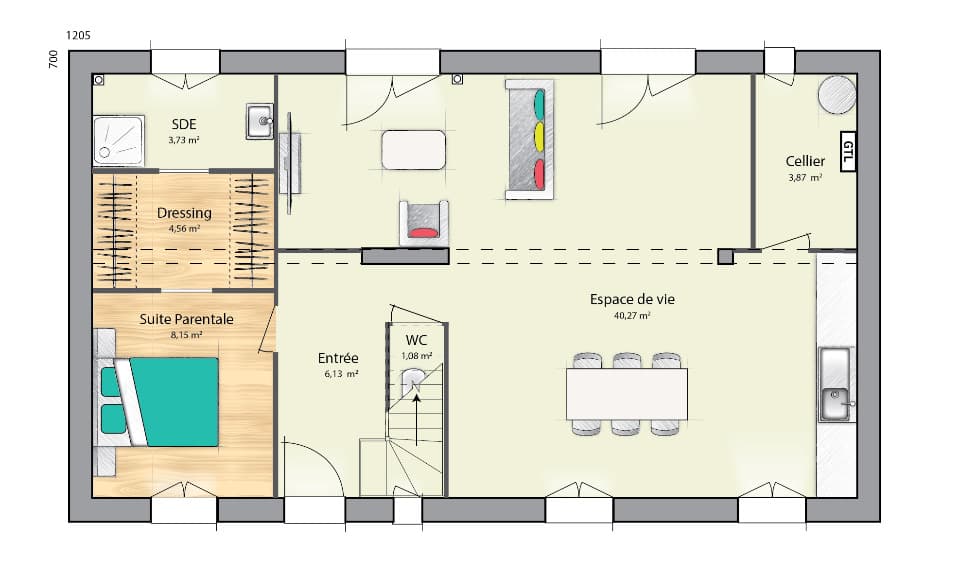
Terrain à bâtir sur la charmante commune de LUAT (FRESNOY LE LUAT), très convoité, d'une superficie de 700 m²,plat, avec belle façade constructible de 30.00 ml, idéalement situé à 15 minutes de CREPY EN VALOIS. Exemple de projet maison de 105 m2 loi Carrez Tous nos projets sont entièrement réalisés sur-mesure, de nombreuses prestations incluses: baies coulissantes en aluminium, volets roulants intégrés à la maçonnerie (non-apparents) motorisés. Entrée, cuisine, pièce de vie, cellier et pièces d'eau carrelés, maison prête à décorer, clef en main. Pompe à chaleur ou pompe à chaleur hybride (gaz) dernière génération (classe énergétique A+), plancher chauffant RDC (et ETAGE), sèche-serviettes, plusieurs choix de menuiseries intérieures, construction en brique. RE 2020. Projet terrain + maison + frais annexes. Pour tout renseignement contacter XAVIER de l'agence Maisons France Confort au 06 16 27 53 27.










