

- Prix
- 320 900 €
Maison neuve • Chanteloup-les-Vignes (78)
- Nom et prix
- Terrain à bâtir Chanteloup-les-Vignes (78570) • 320 900 €
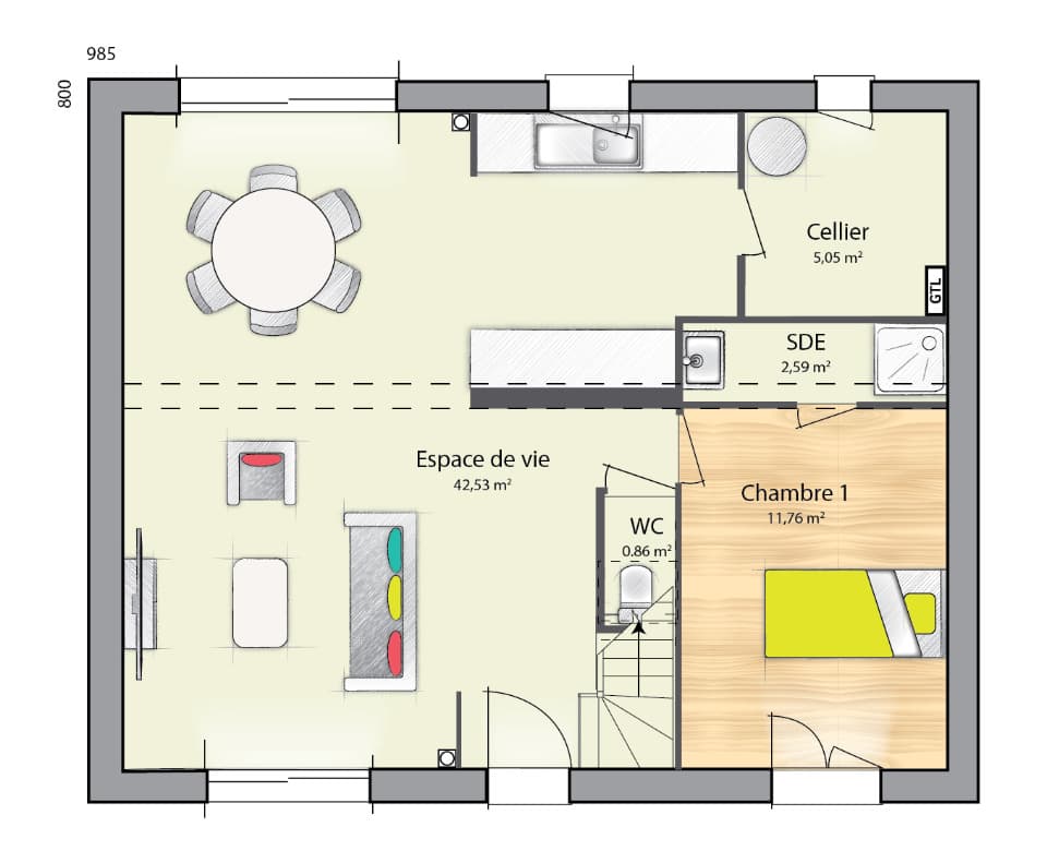
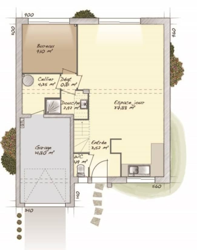
Vente Maison Neuve 5 Pièces - 96 m² à Chanteloup-les-Vignes (78570) Emplacement idéal à 30 minutes de Paris À Chanteloup-les-Vignes (78570), à deux pas de la gare d'Andrésy (Transilien J, Paris en 30 minutes), cette magnifique maison neuve de 5 pièces et 96 m² offre un cadre de vie parfait pour une famille. Profitez d'un emplacement stratégique, à proximité de toutes les commodités et des transports, pour réaliser votre projet immobilier dans un secteur prisé. Les caractéristiques de la maison : Quatre chambres spacieuses, idéales pour accueillir votre famille, Une cuisine ouverte à aménager à votre convenance, Deux salles de bains, parfaites pour plus de confort au quotidien, Maison sur 2 niveaux, permettant une belle distribution des espaces, Le terrain de 405 m² vous offre un bel espace extérieur pour jardin, terrasse ou projet de loisirs. Les atouts de cette maison et de son emplacement : Quartier attractif : à moins de 10 minutes à pied des écoles (École Primaire Verlaine et École Primaire Ronsard), idéal pour les familles avec enfants, Transports en commun : à quelques pas de la gare d'Andrésy, vous permettant de rejoindre Paris en 30 minutes en Transilien J, Commodités à proximité : tennis, bibliothèque, plusieurs commerces locaux, deux boulangeries et une épicerie. Le marché Quai de Seine anime le quartier, offrant une vie de quartier agréable et dynamique. Cette maison est proposée au prix de 320 900 €, offrant une belle opportunité pour acquérir un bien de qualité dans un secteur recherché. Contactez Caroline BETHERY au O6 81 87 74 31 pour toute information supplémentaire ou pour organiser une visite. Maisons Evolution Cormeilles-en-Parisis vous accompagne à chaque étape de votre projet immobilier.












