

- Prix
- 609 000 €
Maison neuve • Chevreuse (78)
- Nom et prix
- Terrain à bâtir Chevreuse (78460) • 609 000 €
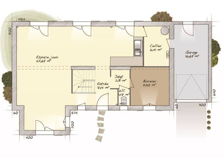
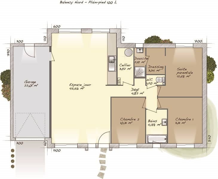
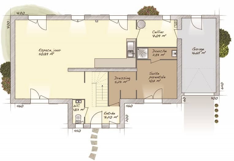
Découvrez cette magnifique maison de plain-pied de 95 m², pensée pour allier confort, espace et luminosité. Parfaitement adaptée aux familles, elle propose : • Une pièce de vie de 45 m², baignée de lumière, idéale pour partager des moments conviviaux. • Une cuisine fonctionnelle avec un cellier attenant pour plus de praticité. • 3 belles chambres, dont : • Une salle de bain familiale et un WC indépendant, moderne et pratique. Le tout sur un terrain d'environ 874 m² très bien exposé, plat et viabilisé, offrant un cadre agréable et parfaitement aménageable. Avec son style contemporain, ses espaces ouverts et lumineux, cette maison peut être entièrement personnalisée pour répondre à vos envies et besoins spécifiques. Entièrement modifiables selon vos envies. N'attendez plus ! Contactez Tessie FLEUREAU au 07/62/06/10/64 pour découvrir les plans et concrétiser votre projet sur mesure. • 333 000 € prix du terrain (hors droit d'enregistrement, frais de notaire, et frais annexes) • 220 000 € prix de Maison (Hors branchements et raccordements, viabilisation du terrain, papiers peints, peintures, revêtement de sol). Etiquette énergie : A. • Assurances et garanties du constructeur compris (RC professionnelle, décennale, dommage ouvrage, garantie de remboursement de l'acompte, livraison à prix et délai convenu) • Le projet au global comprenant le terrain, les frais de notaire, la viabilisation publique, privée, les frais annexes et le coût de construction est d'environ 609 000 €











