

- Prix
- 395 690 €
Maison neuve • Vulaines-sur-Seine (77)
- Nom et prix
- Terrain à bâtir Vulaines-sur-Seine (77870) • 395 690 €
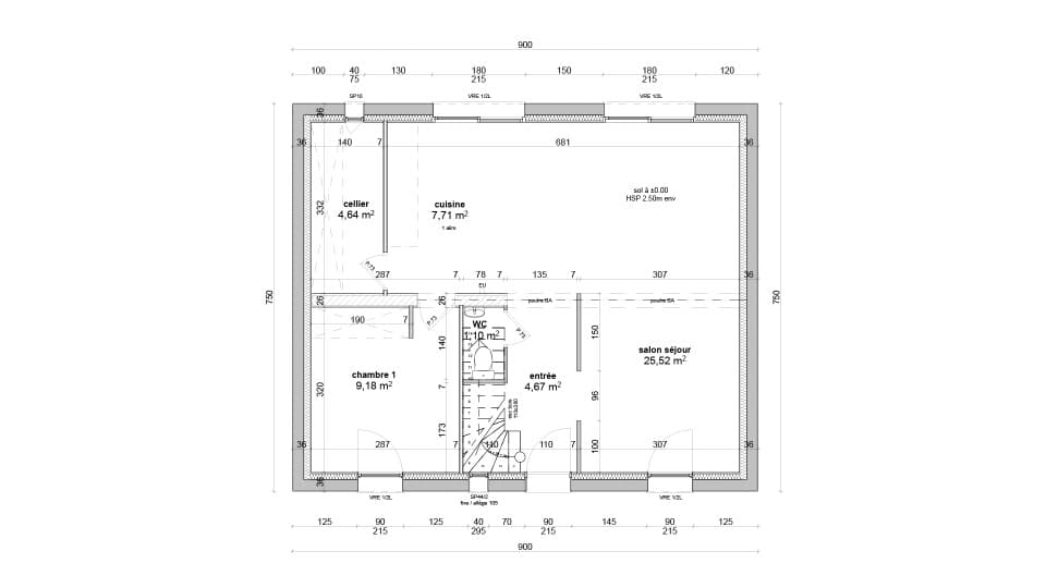
Un modèle de maison pensé pour les primo-accédants : une maison individuelle en R+1, conçue pour permettre aux jeunes foyers de concrétiser leur premier projet immobilier. Cette habitation combine modernité, confort et efficacité énergétique pour répondre parfaitement à vos attentes. Au rez-de-chaussée, profitez d'un espace de vie pratique et convivial, comprenant un séjour lumineux et une cuisine ouverte, idéale pour partager des moments privilégiés en famille ou entre amis. À l'étage, trois chambres bien agencées offrent un espace privé et chaleureux pour chaque occupant. Pour une solution complète, un garage intégré vient compléter ce bien, facilitant le stationnement tout en valorisant votre bien immobilier. Grâce à un design optimisé et au travail mené avec un expert en thermique, cette maison affiche des performances énergétiques remarquables : - Isolation renforcée, - Matériaux durables et respectueux de l'environnement, - Équipements économiques pour réduire vos dépenses énergétiques. Accessible et durable, ce modèle de maison offre un excellent rapport qualité-prix, tout en garantissant un cadre de vie agréable et écoresponsable. Faites le premier pas vers votre avenir en choisissant un investissement serein et pérenne, conçu spécialement pour vous. Pour toute demande d'information ou pour étudier ensemble votre projet, contactez Chloé Burot. Maisons Berval est certifiée NF HQE (Haute Qualité Environnementale) pour vous garantir un habitat sain, durable et performant.











