

- Prix
- 401 400 €
Maison neuve • Melun (77)
- Nom et prix
- Terrain à bâtir Melun (77000) • 401 400 €
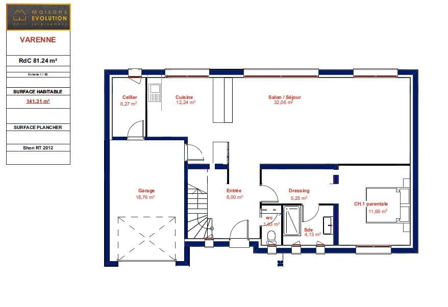
Venez construire avec Franck de Maisons Evolution 07/66/67/97/06 votre maison moderne d'une superficie de 143m² avec garage intégré composée, d'une grande pièce de vie spacieuse avec cuisine ouverte ou fermée, une chambre avec salle d'eau, d'un cellier et un WC au Rez-de-chaussée et à l'étage, 4 grandes chambres, une salle de bain principale un WC indépendant. Le tout sur un terrain de 380m². Pour plus de renseignements sur cette annonce contacter Franck au 07/66/67/97/06. (Terrain fournis par nos partenaires fonciers, sous réserves de disponibilités. Photos non contractuelles. Prix Hors frais de notaire).












