

- Prix
- 292 484 €
Maison neuve • Saussens (31)
- Nom et prix
- Terrain à bâtir Saussens (31460) • 292 484 €
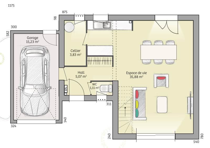
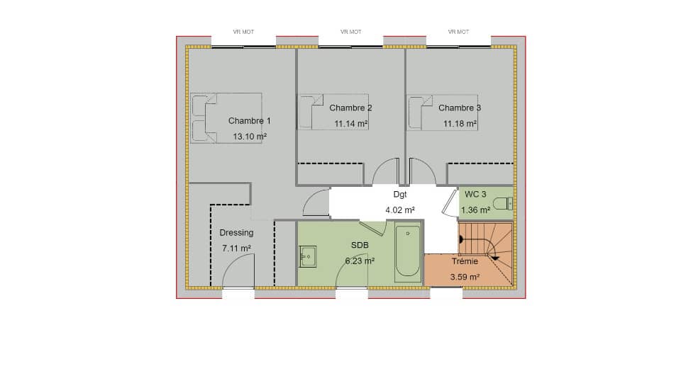
Découvrez les charmes de LA LIBECCIO. Cette belle maison de plain-pied, qui saura vous séduire par son architecture en forme de L, son look tendance et son aménagement intérieur. Son espace de vie traversant et lumineux de 48 m² vous offre un accès direct sur votre future terrasse couverte de 12 m². La partie nuit est composée de 3 chambres avec de beaux rangements, d'une salle de bain et de l'autre côté de la Pièce à vivre, une belle suite parentale avec dressing et salle d'eau privative. Un grand garage de 22 m² vous donnera du confort de rangement tout en ayant la possibilité de garer votre voiture. OC RESIDENCES, constructeur de maisons individuelles depuis bientôt 40 ans, réalise votre rêve de maison.


















