

- Prix
- 331 000 €
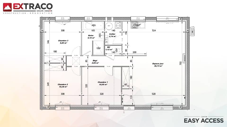
Maison neuve • Trumilly (60)
- Nom et prix
- Terrain à bâtir () • 331 000 €
Maison de plain pied , située à Trumilly , sur un terrain de 1610m² . Vue dégagée , environnement paisible et verdoyant , à deux pas des écoles , 10minutes de Crépy en Valois et 35minutes de Roissy . Cette maison RE2020 dispose de 3 chambres avec rangements intégrés , séjour carrelé ,1 salle d'eau équipée , grand garage accolé. Packs alarme et domotique , baie aluminium , volets roulants centralisés et intégrés à la maçonnerie . Plans 100% personnalisables et modifiables . Accompagnement intégral : Financement , étude technique du terrain , gestion administrative . Frais annexes ( raccordements , viabilisation , puisards, enlèvements des terres excédentaires , chemin d'accès et assainissement )inclus dans le prix de cette annonce . Contactez moi pour une étude gratuite . Rendez vous en agence ou à votre domicile . VERON ANTHONY /07/77/85/58/88/
















