

- Prix
- 282 900 €
Maison neuve • Rochefort-du-Gard (30)
- Nom et prix
- Terrain à bâtir () • 282 900 €
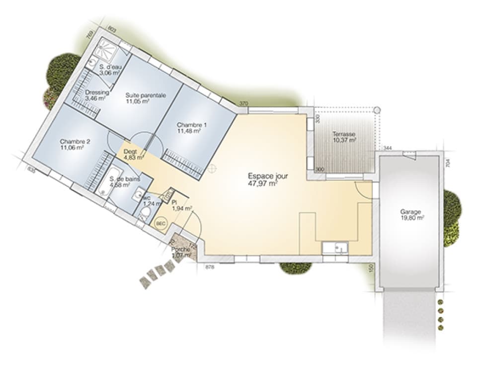
VENTE : maison F4 (85 m²) à Rochefort-du-Gard MAISON 4 PIÈCES NEUVE - PROCHE D'AVIGNON En vente à 45 km de la côte méditerranéenne et à 13 km d'Avignon, notre agence Maisons de Manon Villevieille est heureuse de vous proposer à Rochefort-du-Gard (30650), cette maison de 4 pièces de plain-pied de 85 m². Elle se divise en trois chambres, une cuisine et une salle de bains. Le terrain de la propriété s'étend sur 460 m². La maison est neuve. Des écoles primaires sont implantées à moins de 10 minutes à pied. Niveau transports, il y a trois gares (Avignon TGV, Avignon TGV terminal TER et Avignon Centre) à moins de 10 minutes en voiture. L'autoroute A9 et les nationales N7 et N100 sont accessibles à moins de 9 km. On trouve un tennis, quatre commerces, une boulangerie, un bureau de poste et une supérette à proximité de la maison. Elle est proposée à l'achat pour 282 900 €. N'hésitez pas à prendre contact avec notre constructeur (BOUBAL Vincent : 06-45-46-73-72) pour toute question sur la maison, sur les démarches à suivre ou sur les modalités de vente. Maisons de Manon Villevieille vous accompagne dans tous vos projets immobiliers et à toutes les étapes de votre projet.















