

- Prix
- 354 000 €
Maison neuve • Saint-Lieux-lès-Lavaur (81)
- Nom et prix
- Terrain à bâtir Saint-Lieux-lès-Lavaur (81500) • 354 000 €
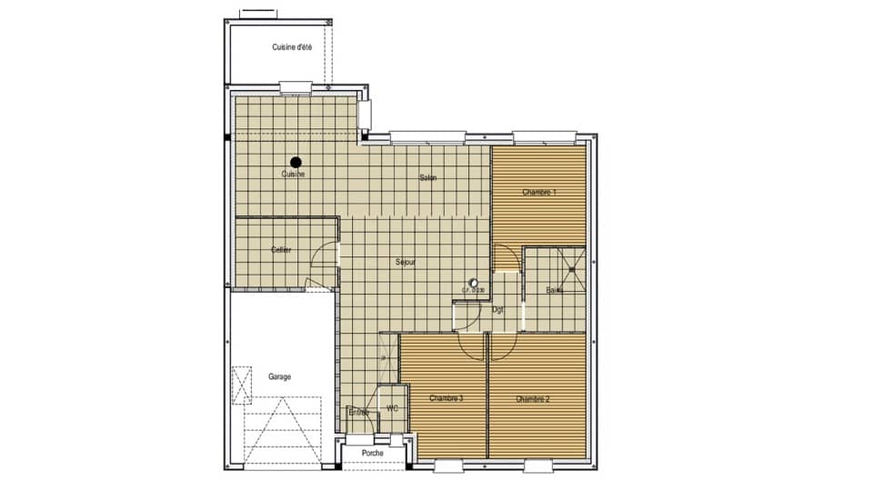
Nos architectes ont conçu pour vous, le modèle Clair de lune. Son architecture et son aménagement intérieur enchanteront votre quotidien. Son porche d'entrée couvert vous donnera accès à un hall d'entrée avec WC et placard, qui s'ouvrira d'un côté sur un Salon/Séjour de 54 m² et de l'autre côté sur un coin nuit avec trois belles chambres et une Salle de Bains. Ces volumes orientés vers votre jardin vous donneront un sentiment de liberté et d'espace. A l'étage, vous disposerez d'une mezzanine ouverte sur le séjour ainsi que d'une suite parentale indépendante de 21 m². De plus, un garage vous donnera accès à votre intérieur par un cellier de 7 m². N'attendez-plus et contactez-nous pour construire votre nouveau projet de vie dans le Tarn, l'Aude, L'Hérault, la Haute-Garonne ainsi que les Pyrénées Orientales.
















