

- Prix
- 287 000 €
Maison neuve • Faverolles-et-Coëmy (51)
- Nom et prix
- Terrain à bâtir () • 287 000 €
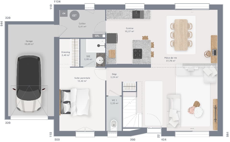
À Faverolles et Coemy, maison neuve de 115m² avec 4 chambres à acheter. Le modèle de maison qui vous est présenté est Horizon 115 GA. L'intérieur est constitué d'un espace de vie ouvert sur la cuisine, une salle de bains, deux wc, 4 chambres (dont une suite parentale avec dressing et salle d'eau privative au rez-de-chaussée), et un cellier. La maison dispose également d'un garage accolé communiquant par la maison via le cellier. La construction traditionnelle aux normes RE2020 de la maison est réalisée en brique et l'ensemble des matériaux utilisés sont de qualité afin de vous assurer un investissement durable. Terrain constructible de 442m2 entièrement viabilisé à Faverolles et Coëmy idéalement situé. Cadre particulièrement qualitatif. Faverolles et Coëmy est une commune recherchée pour son axe direct, son calme et sa proximité avec Reims, Montigny sur Vesle, Les Vantaux, Fismes, Gueux, Muizon, Châlons sur Vesle, Courcelles-Sapicourt, Branscourt, Jonchery sur Vesle, Breuil, Prouilly, Pevy, Bouvancourt, Ventelay, Romain, Vandeuil, Hourges, Courlandon, Unchair, Tramery, Poilly, Treslon, Bouleuse, Serzy et Prin et Magneux. Pour plus de renseignements vous pouvez me contacter , Nicolas GUILLAUME de l'agence Maisons France Confort de Cormontreuil au 07.77.79.23.59















