

- Prix
- 234 000 €
Maison neuve • Brens (81)
- Nom et prix
- Terrain à bâtir Brens (81600) • 234 000 €
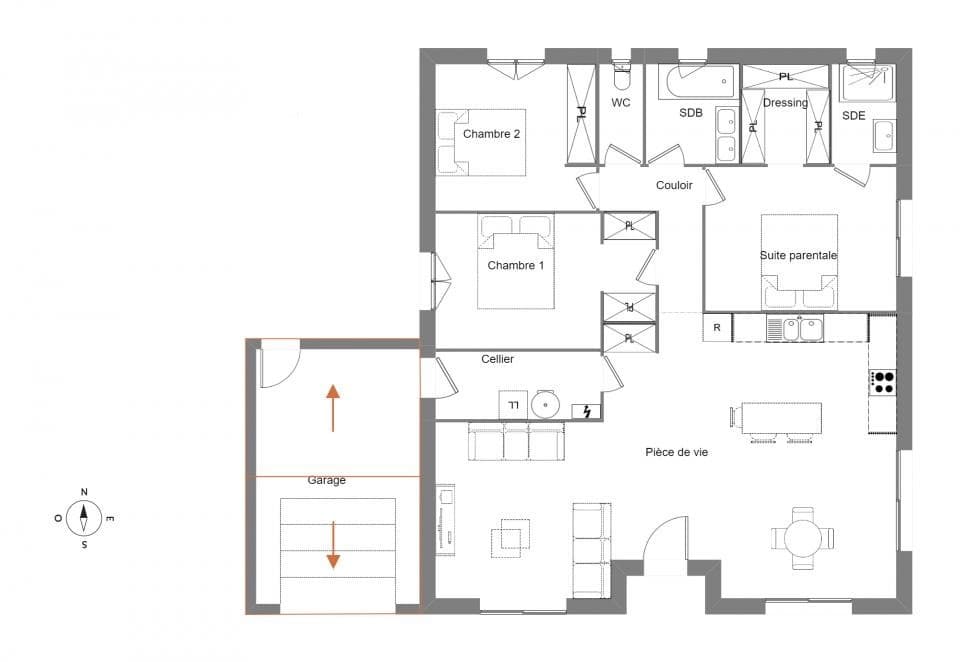
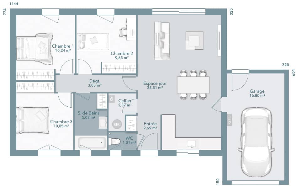
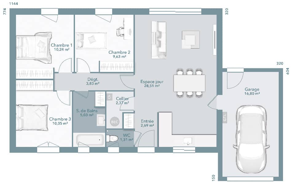
La maison Rose des vents offrira la modernité à votre quotidien. Son aménagement intérieur, vous assurera une judicieuse séparation entre l'espace jour et l'espace nuit, et ce, pour vous assurer une plus grande intimité. Son porche d'entrée vous abritera avant d'accéder à une vaste pièce à vivre de 40 m². Son coté nuit dessert quatre chambres avec placard et une salle de bains familiale. Son architecture en L font de ce modèle un incontournable chez Oc résidences, votre constructeur sur mesure en Occitanie.














