

- Prix
- 415 000 €
Maison neuve • Narbonne (11)
- Nom et prix
- Terrain à bâtir Narbonne (11100) • 415 000 €
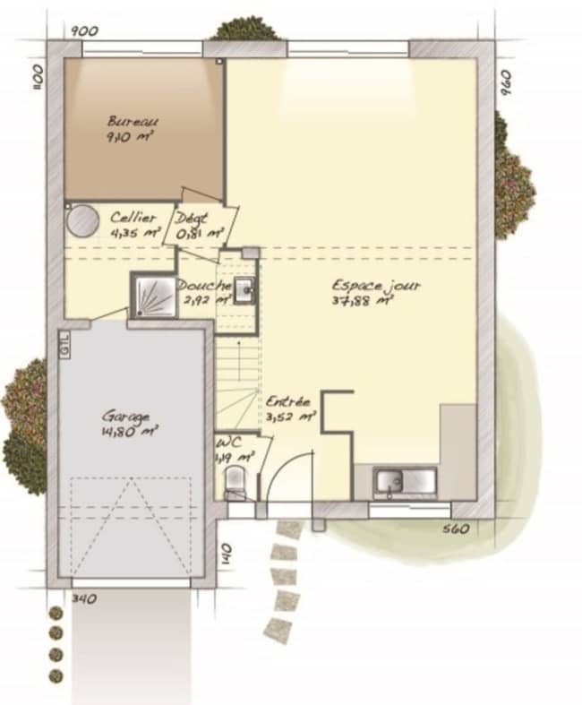
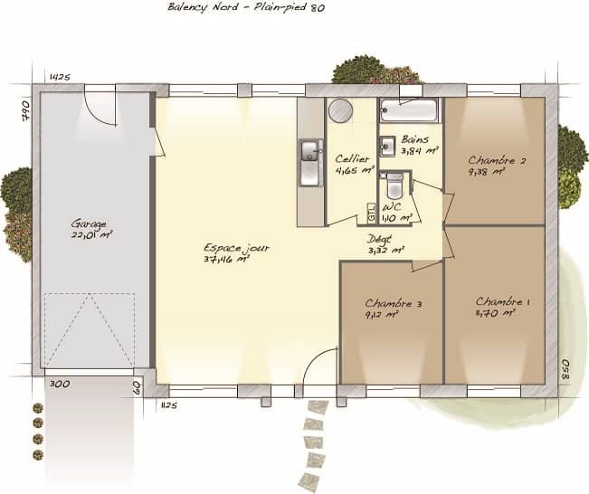
Le Parfum d'été a le raffinement de la Provence avec sa forme en V. Son décroché de toiture, ses tuiles vieillies, ses encadrements de fenêtres donneront à votre maison tout son charme. Son hall d'entrée avec placards et WC s'ouvrira sur un lumineux Salon/Séjour de plus de 50 m2. Sa cuisine ouverte donnera sur un Auvent de 20 m² et un cellier communiquant avec un garage de 16 m². Le coté nuit s'articule autour de trois chambres avec placard et d'une salle de bain familiale. Un bureau viendra agrémenter votre quotidien. Cette maison est à construire dans le département du Tarn, l'Aude, l'Hérault, la Haute-Garonne ainsi que les Pyrénées Orientales par Oc résidences, votre constructeur sur mesure en Occitanie.

















