

- Prix
- 184 821 €
Maison neuve • Saint-Papoul (11)
- Nom et prix
- Terrain à bâtir Saint-Papoul (11400) • 184 821 €
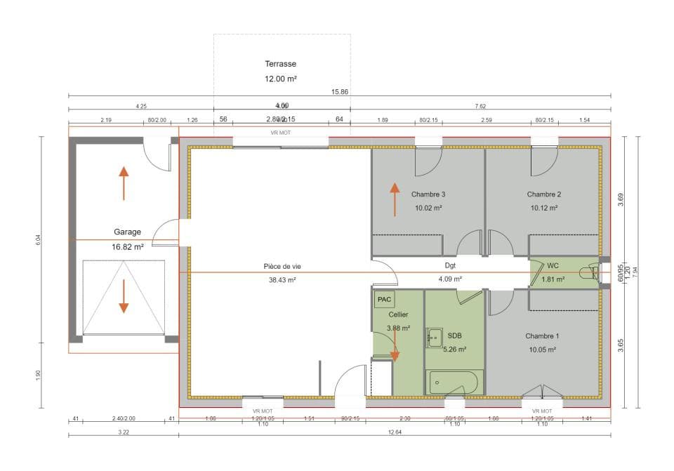
Découvrez le modèle Rosée 86 m², une élégante maison de plain-pied conçue dans le respect de l'architecture de notre région. La villa se compose d'un spacieux Salon/Séjour dotée d'une grande baie vitrée. La cuisine ouverte avec un accès direct dans le garage. Le coté nuit s'articule autour de 3 chambres avec placard, un WC indépendant et une belle salle de bains. Cette maison, vous assurera des espaces de vie jour et nuit bien séparés. Elle est à construire dans le département du Tarn, l'Aude, l'Hérault, la Haute-Garonne ainsi que les Pyrénées Orientales par Oc Résidences, votre constructeur sur mesure en Occitanie.

















