

- Prix
- 461 000 €
Maison neuve • Armancourt (60)
- Nom et prix
- Terrain à bâtir Armancourt (60880) • 461 000 €
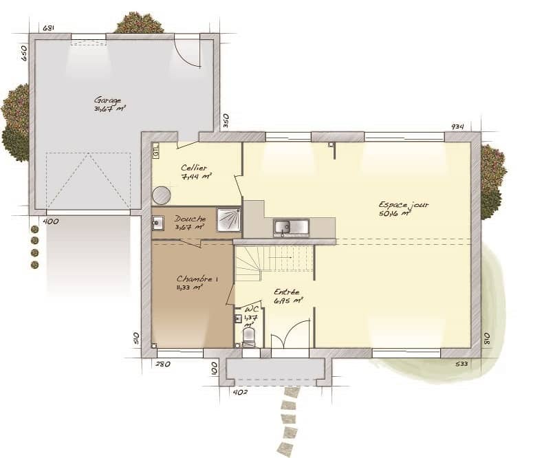
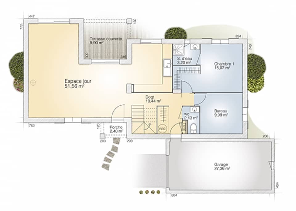
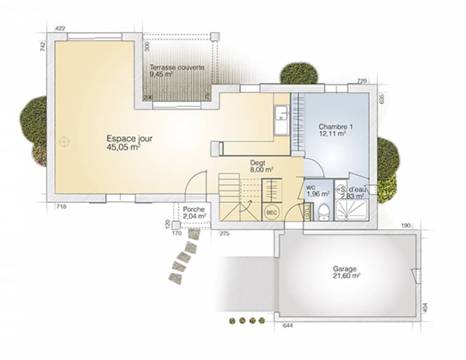
Maison d'architecte , située sur les hauteurs de Armancourt , sur un terrain de 1800m² . Vue dégagée et exceptionnelle , environnement paisible et résidentiel , à deux pas de l'école. Cette maison dispose de 5 chambres avec rangements intégrés , une véritable entrée , séjour carrelé ,2 salles d'eau équipées ,cellier et garage , packs alarme et domotique , baie aluminium , volets roulants centralisés et intégrés à la maçonnerie ... Plans 100% personnalisables et modifiables . Accompagnement intégral : Financement , étude technique du terrain , gestion administrative . Frais annexes ( raccordements , viabilisation , puisards, enlèvements des terres excédentaires , chemin d'accès )inclus dans le prix de cette annonce . Contactez moi pour une étude gratuite . Rendez vous en agence ou à votre domicile . VERON ANTHONY /07/77/85/58/88/

















