

- Prix
- 345 000 €
Maison neuve • Templeuve (59)
- Nom et prix
- Terrain à bâtir () • 345 000 €
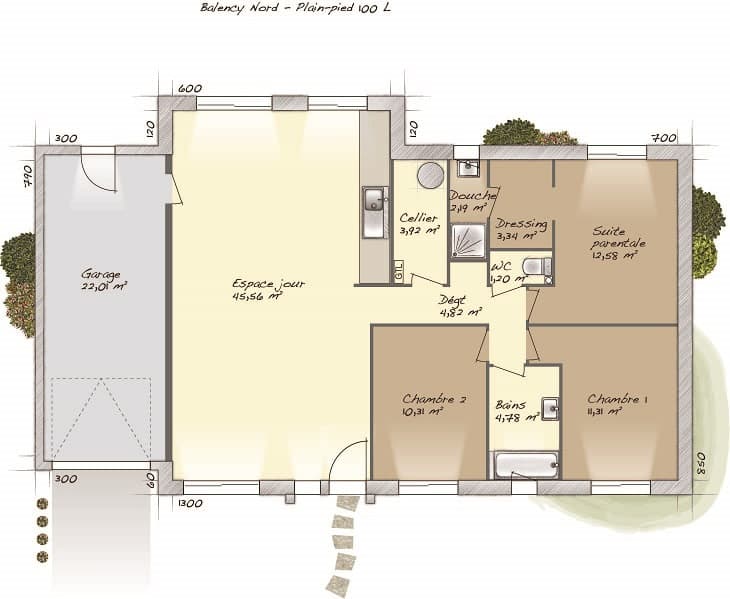
VENTE d'une maison de 5 pièces (90 m²) à Templeuve EMPLACEMENT PRIVILÉGI- MAISON 5 PIÈCES NEUVE En vente : localisée proche de la Belgique et à 14 km de Lille, notre agence Maisons France Confort Lille est ravie de vous proposer cette maison de 5 pièces de plain-pied de 90 m² et de 479 m² de terrain bénéficiant d'un emplacement d'exception dans Templeuve (59242). Son intérieur se divise en trois chambres, une cuisine et une salle de bains. Cette maison est neuve. Elle se trouve dans un secteur recherché. L'école élémentaire Groupe Scolaire Marie Navart est implantée à moins de 10 minutes à pied. Côté transports en commun, il y a la gare Templeuve à proximité. Quatre autoroutes sont accessibles à moins de 10 km. On trouve un tennis, des commerces, deux boulangeries, un bureau de poste et une boucherie-charcuterie à quelques minutes. Elle est proposée à l'achat pour 345 000 €. Prenez contact avec notre constructeur (Sébastien RAVIART : 06-46-26-20-72) pour toute question sur la maison, sur les démarches à suivre ou sur les modalités de vente.

















