

- Prix
- 352 000 €
Maison neuve • Les Mesneux (51)
- Nom et prix
- Terrain à bâtir () • 352 000 €
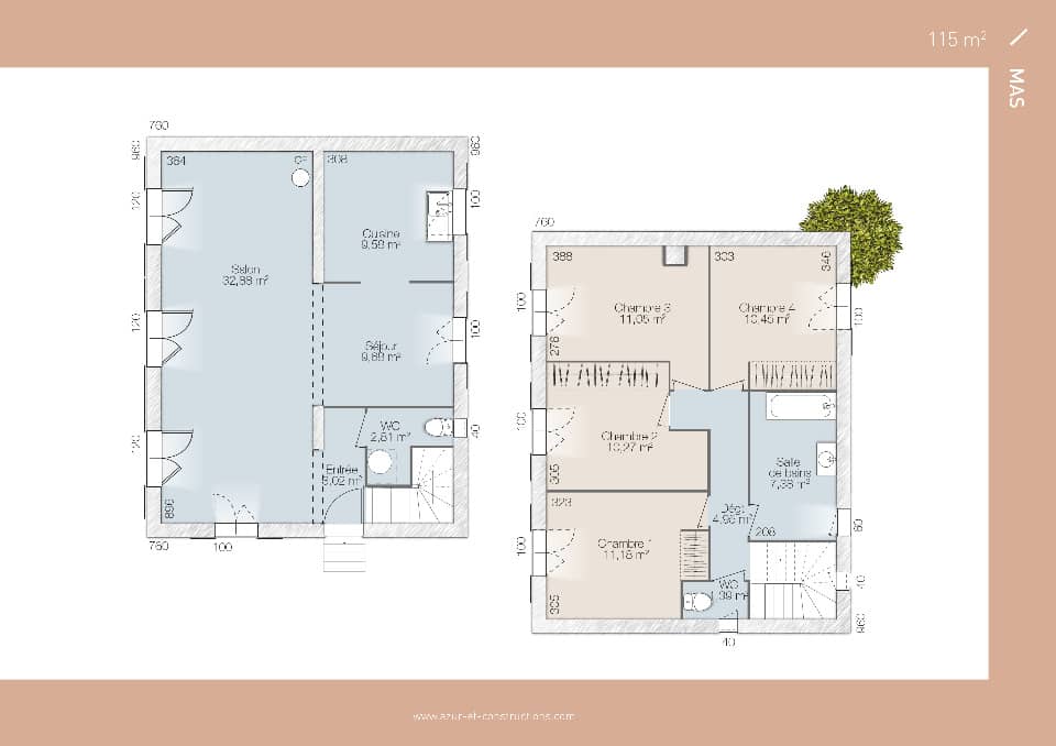
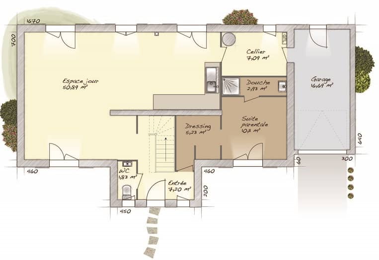
Maison neuve de 90m² avec 3 chambres à Les Mesneux. Le modèle de maison qui vous est présenté est Open Nord PP L GA accès nord 90 so tradition. Architecture de style traditionnelle offrant 90m2, l'espace intérieur comprend une pièce de vie ouverte sur la cuisine, 3 chambres avec placards, une salle de bains, un cellier et un garage. Il est possible de personnaliser ces plans afin qu'ils répondent parfaitement à vos attentes La construction traditionnelle aux normes RE2020 de la maison est réalisée en brique et l'ensemble des matériaux utilisés sont de qualité afin de vous assurer un investissement durable. Terrain de près de 1125m² dans un village très recherché aux portes de Reims. Environnement de qualité. Cette parcelle n'est pas en lotissement, et se situe dans la commune de Les Mesneux, proche de Tinqueux, Ormes, Vrigny, Pargny Lès Reims, Gueux, Thillois, Champigny, Ecueil, Ville Dommange, Chamery, Champfleury, Villers aux Noeuds, Sacy et Reims, Pour plus de renseignements vous pouvez me contacter, Nicolas Guillaume de l'agence Maisons France Confort de Cormontreuil au 07.77.79.23.59

















