

- Prix
- 298 500 €
Maison neuve • Mornac-sur-Seudre (17)
- Nom et prix
- Terrain à bâtir () • 298 500 €
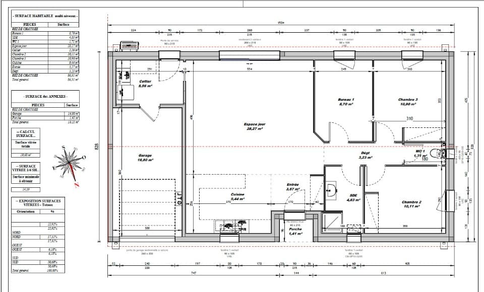
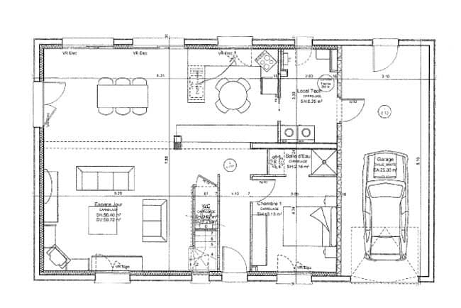
Vous souhaitez habiter une maison de plain-pied, avec une pièce de vie traversante communiquant avec le cellier et le garage, mais également avec 3 chambres alors cette maison est faite pour vous. Cette maison est construite en briques sur vide-sanitaire. Elle est présentée avec les peintures et revêtements de sols dans les chambres faits, faïence toute hauteur en douche et 2 m sur le reste de la salle d'eau, porte de garage sectionnelle motorisée. La production d'eau chaude et de chauffage (plancher chauffant hydraulique) est assurée par une pompe à chaleur air/eau. Contactez Pierre-Emmanuel HÜE (Bermax Construction Vaux-sur-Mer) au 06.25.78.28.20 pour de plus amples renseignements.
















