

- Prix
- 505 440 €
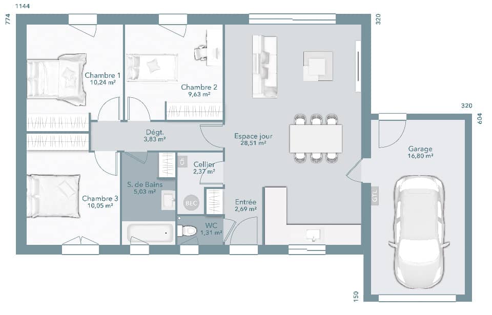
Maison neuve • Baron (60)
- Nom et prix
- Terrain à bâtir Baron (60300) • 505 440 €
Maison de plain pied , située à Baron , sur un terrain de 2620m² , proche de l'école , de la boulangerie ; et des autres commodités . Environnement paisible et verdoyant , sans promiscuité .. Cette maison dispose d'une véritable entrée , de 3 chambres avec rangements intégrés , séjour carrelé ,1 salle d'eau équipée ,cellier et garage , packs alarme et domotique , baie aluminium , volets roulants centralisés et intégrés à la maçonnerie ... Plans 100% personnalisables et modifiables . Accompagnement intégral : Financement , étude technique du terrain , gestion administrative . Frais annexes ( raccordements , viabilisation , puisards, enlèvements des terres excédentaires , chemin d'accès )inclus dans le prix de cette annonce . Contactez moi pour une étude gratuite . Rendez vous en agence ou à votre domicile . VERON ANTHONY /07/77/85/58/88/
















