

- Prix
- 295 045 €
Maison neuve • Castelnaudary (11)
- Nom et prix
- Terrain à bâtir Castelnaudary (11400) • 295 045 €
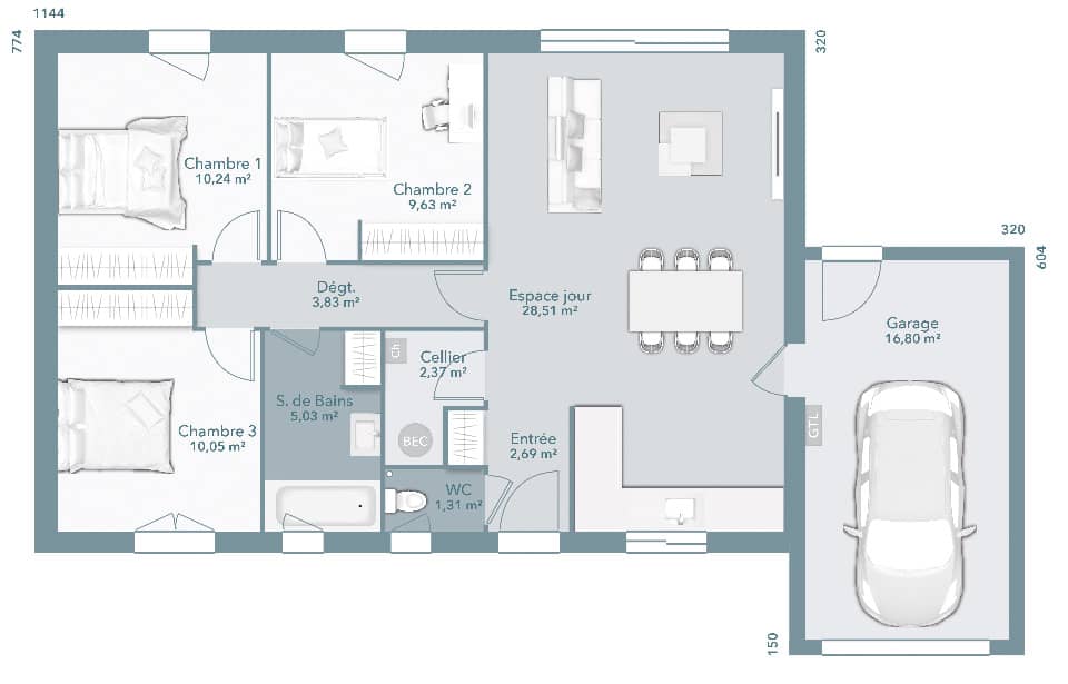
La SOLAIRE vous assure des volumes généreux et permet de profiter pleinement de la lumière grâce à ses nombreuses ouvertures. Moderne, cette villa vous donne de nombreuses possibilités en termes de disposition des pièces. Sa pièce de vie centrale de 53 m² vous donne accès sur une aile de la maison composée de trois chambres et une salle de bain et sur l'autre, une belle suite parentale indépendante. Sa forme de U vous permet aussi un aménagement extérieur design, avec une grande terrasse ou une piscine au milieu. Sa toiture pourra être décliné de plusieurs manières, afin d'harmoniser son architecture à votre goût. La SOLAIRE est à construire par OC Résidences, votre constructeur sur mesure du Tarn, l'Aude, l'Hérault, la Haute-Garonne ainsi que les Pyrénées Orientales.


















