

- Prix
- 255 000 €
Maison neuve • Soulitré (72)
- Nom et prix
- Terrain à bâtir Soulitré (72370) • 255 000 €
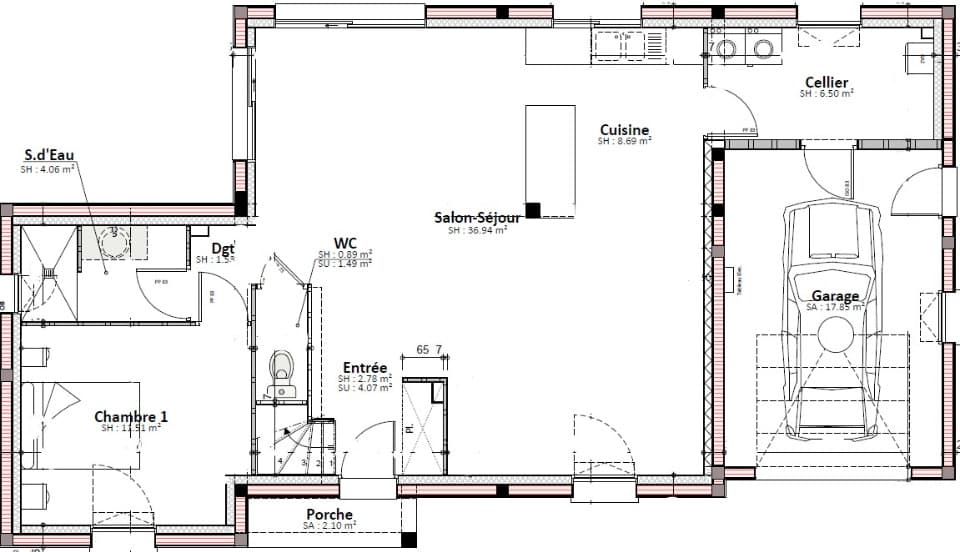
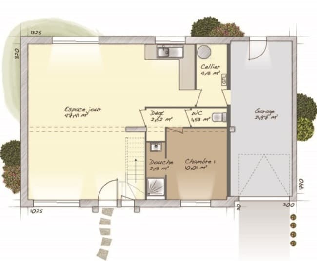
Maison de 6 pièces (108 m²) à vendre à Soulitré EMPLACEMENT PRIVILÉGI- MAISON 6 PIÈCES NEUVE En vente : située à deux pas du Mans, bénéficiant d'un emplacement d'exception dans Soulitré (72370), Maine Construction Saint-Saturnin vous présente cette maison de 6 pièces de 108 m² et de 510 m² de terrain. Cette maison compte 2 niveaux. Elle inclut quatre chambres, une cuisine et deux salles de bains. Cette maison est neuve. Le bien se situe dans un secteur convoité. On trouve l'École Maternelle Publique à moins de 10 minutes à pied. Niveau transports en commun, il y a quatre gares à moins de 10 minutes en voiture. Les autoroutes A28 et A11 sont accessibles à moins de 13 km. On trouve un commerce à proximité de la maison. Il est à vendre pour la somme de 255 000 €. Contactez Luc LIVET (07-77-76-37-30) pour toute question sur la maison, sur les démarches à suivre ou sur les modalités de vente. Faites de vos projets immobiliers une réalité avec Maine Construction Saint-Saturnin.



















