

- Prix
- 306 760 €
Maison neuve • Domloup (35)
- Nom et prix
- Terrain à bâtir Domloup (35410) • 306 760 €
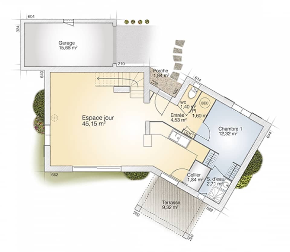
Maison de 4 pièces (105 m²) en vente à Domloup IDÉALEMENT SITUÉE - MAISON 4 PIÈCES NEUVE À 12 km de Rennes, nous vous présentons cette maison de 4 pièces de 105 m² idéalement située dans Domloup (35410). Cette maison comporte 2 niveaux. Elle est composée de quatre chambres, d'une cuisine et de deux salles de bains. La maison est neuve. Le terrain du bien est de 259 m². La maison se situe dans un secteur convoité. L'École Primaire Privée Ste Jeanne d'Arc et l'École Primaire Publique Jean de la Fontaine se trouvent à moins de 10 minutes à pied. Côté transports en commun, il y a sept gares à moins de 10 minutes en voiture. Les nationales N157 et N136 sont accessibles à moins de 8 km. On trouve deux tennis, deux boulangeries, un commerce et un supermarché à quelques minutes du logement. Son prix de vente est de 306 760 €. Contactez Romain CIMINNA (tél : 02-99-83-07-20) pour obtenir de plus amples informations sur la maison. Maisons de l'Avenir Cesson-Sévigné est là pour vous accompagner dans toutes vos démarches.

















