

- Prix
- 395 000 €
Maison neuve • Issenheim (68)
- Nom et prix
- Terrain à bâtir Issenheim (68500) • 395 000 €
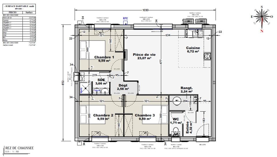
VENTE : maison de 5 pièces (118 m²) à Issenheim QUARTIER RECHERCH- MAISON 5 PIÈCES NEUVE À vendre proche de l'Allemagne et de la Suisse et à quelques kilomètres de Mulhouse, notre agence Maisons Brand Colmar est heureuse de vous présenter cette maison de 5 pièces de 118 m² située dans un secteur prisé d'Issenheim (68500). Il s'agit d'une maison de 2 niveaux. Elle compte quatre chambres, une cuisine et deux salles de bains. La maison est neuve. Le terrain du bien est de 457 m². Elle est située dans un quartier attractif. Des écoles (de la maternelle au lycée) sont implantées à moins de 10 minutes à pied, tout comme une crèche. On trouve un tennis, des commerces, trois boulangeries, deux supermarchés et trois épiceries à proximité. Son prix de vente est de 395 000 €. Contactez Hervé BACHMANN (tél : 06-79-68-71-53) pour tout renseignement sur cette maison, sur les modalités de vente et sur les démarches à suivre. Maisons Brand Colmar vous accompagne dans tous vos projets immobiliers et dans toutes vos démarches.



















