

- Prix
- 369 800 €
Maison neuve • Le Faou (29)
- Nom et prix
- Terrain à bâtir () • 369 800 €
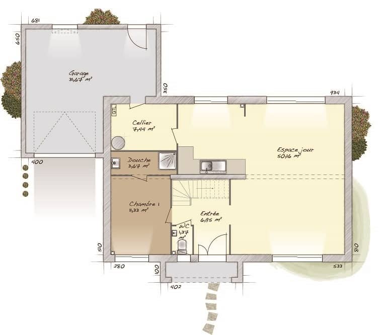
VENTE d'une maison de 5 pièces (127 m²) au Faou CENTRE-VILLE - MAISON 5 PIÈCES NEUVE À vendre : située sur le littoral et à 29 km de Brest, dans le centre-ville du Faou (29590), nous sommes ravis de vous présenter cette maison de 5 pièces de 127 m² et de 581 m² de terrain dans un environnement privilégié. Il s'agit d'une maison de 2 niveaux. Son intérieur comporte quatre chambres, une cuisine et deux salles de bains. Cette maison est neuve. On trouve l'École Élémentaire Publique du Faou à moins de 10 minutes à pied. Côté transports en commun, il y a la gare Pont-de-Buis à moins de 10 minutes en voiture. Il y a un accès à la nationale N165 à 1 km. On trouve un tennis, des commerces, deux boulangeries, un supermarché et deux épiceries dans les environs. Elle est proposée à l'achat pour 369 800 €. N'hésitez pas à prendre contact avec Jean ROPERS pour toute information sur la maison, sur les démarches à suivre ou sur les modalités de vente. Donnez vie à vos projets immobiliers avec Maisons de l'Avenir Brest.

















