

- Prix
- 226 000 €
Maison neuve • Pouzolles (34)
- Nom et prix
- Terrain à bâtir Pouzolles (34480) • 226 000 €
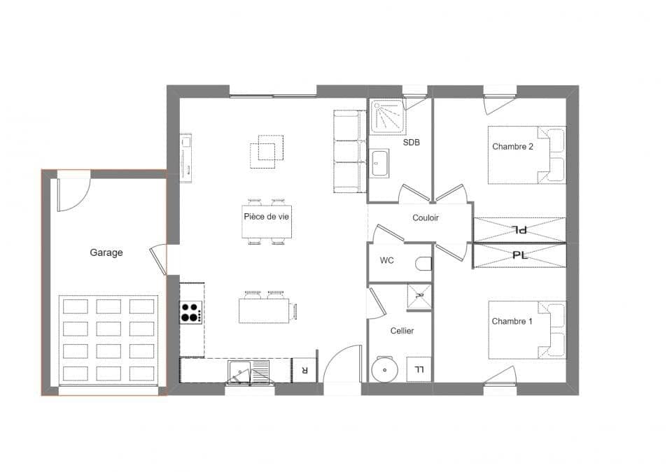
Maison T4 (81 m²) en vente à Pouzolles PROCHE DE BÉZIERS - MAISON 4 PIÈCES NEUVE À vendre à 24 km de la mer Méditerranée et à 14 km de Béziers, à Pouzolles (34480), ayez le coup de coeur pour cette maison de 4 pièces de plain-pied de 81 m² et de 505 m² de terrain. Son intérieur propose trois chambres, une cuisine et une salle de bains. La maison est neuve. Une école primaire est implantée dans la commune. Niveau transports, il y a la gare Magalas à moins de 10 minutes en voiture. On trouve un accès à l'autoroute A75 à 10 km. On trouve une bibliothèque, un tennis, une boulangerie et une épicerie dans les environs. Elle est proposée à l'achat pour 226 000 €. N'hésitez pas à prendre contact avec notre agence (RENARD Léo : 06-13-67-09-81) pour tout renseignement sur la maison.


















