

- Prix
- 399 500 €
Maison neuve • Niederhergheim (68)
- Nom et prix
- Terrain à bâtir Niederhergheim (68127) • 399 500 €
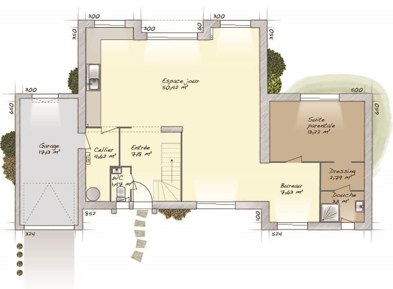
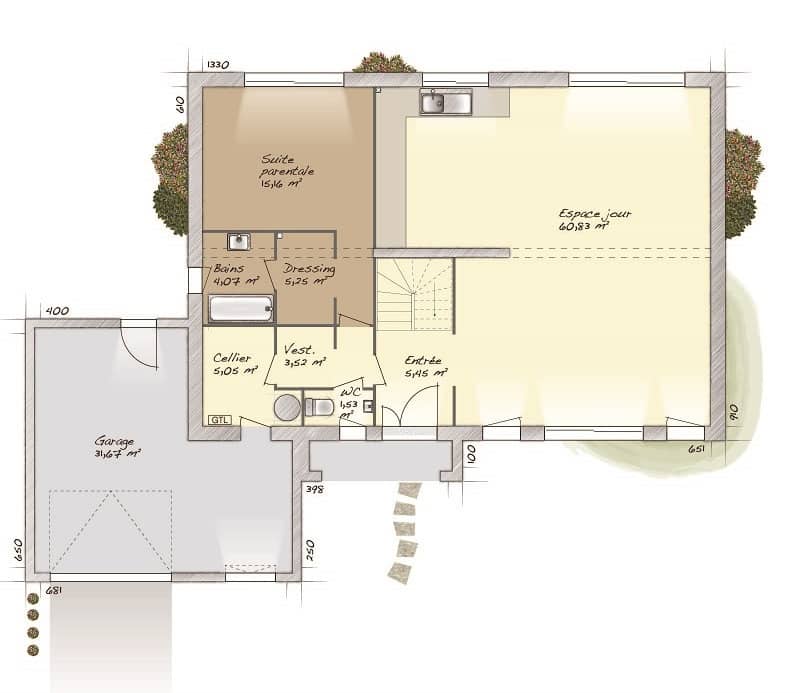
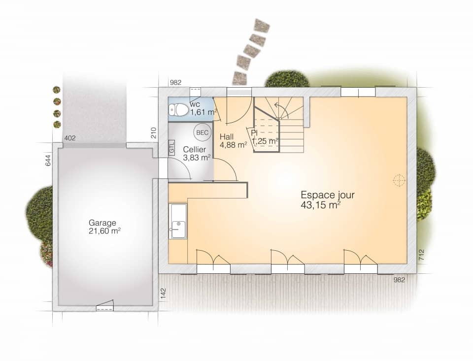
VENTE : maison F5 (111 m²) à Niederhergheim PROCHE DE MULHOUSE - MAISON 5 PIÈCES NEUVE À vendre : localisée à moins de 48 km de l'Allemagne et de la Suisse et à deux pas de Mulhouse, Maisons Brand Colmar vous propose à Niederhergheim (68127), cette maison de 5 pièces de 111 m². C'est une maison de 2 niveaux. Son intérieur offre trois chambres, une cuisine et une salle de bains. La maison est neuve. Le terrain du bien est de 480 m². Des écoles primaires sont implantées dans le quartier. Niveau transports, il y a les gares Herrlisheim-près-Colmar et Rouffach à moins de 10 minutes en voiture. On trouve une bibliothèque, un commerce et une boucherie-charcuterie à proximité du logement. Son prix de vente est de 399 500 € clefs en main. Contactez notre agence (BACHMANN Hervé : 06-79-68-71-53) pour obtenir de plus amples informations sur cette maison. Donnez vie à vos projets immobiliers avec Maisons Brand Colmar.

















