

- Prix
- 317 000 €
Maison neuve • Thuir (66)
- Nom et prix
- Terrain à bâtir () • 317 000 €
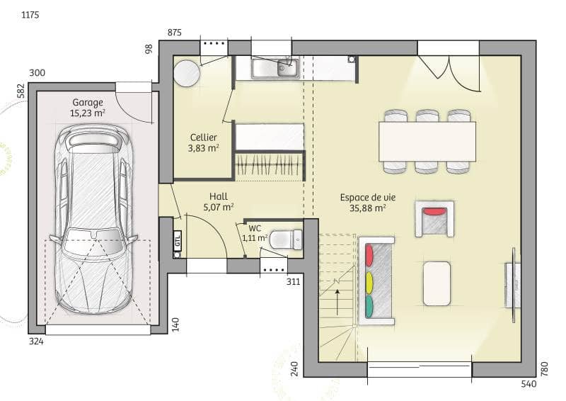
CONSTRUCTION d'une maison T5 (98 m²) à Thuir MAISON 5 PIÈCES NEUVE - PROCHE DE PERPIGNAN Cette maison de 5 pièces de 98 m². Son intérieur dispose de quatre chambres, d'une cuisine et d'une salle de bains. Le terrain de la propriété est de 364 m². Il s'agit d'une maison de 2 niveaux. Elle est neuve. Proche de toutes les commodités , le marché Place de la République anime le quartier chaque samedi matin. Elle est proposée à l'achat pour 317 000 €. Contactez Blandine RONCO : 07-86-75-85-28 pour obtenir de plus amples informations sur la maison ou sur les démarches à suivre. Maisons de Manon Alénya vous accompagne dans tous vos projets immobiliers et à toutes les étapes de votre projet.

















