

- Prix
- 273 000 €
Maison neuve • Asfeld (81)
- Nom et prix
- Terrain à bâtir () • 273 000 €
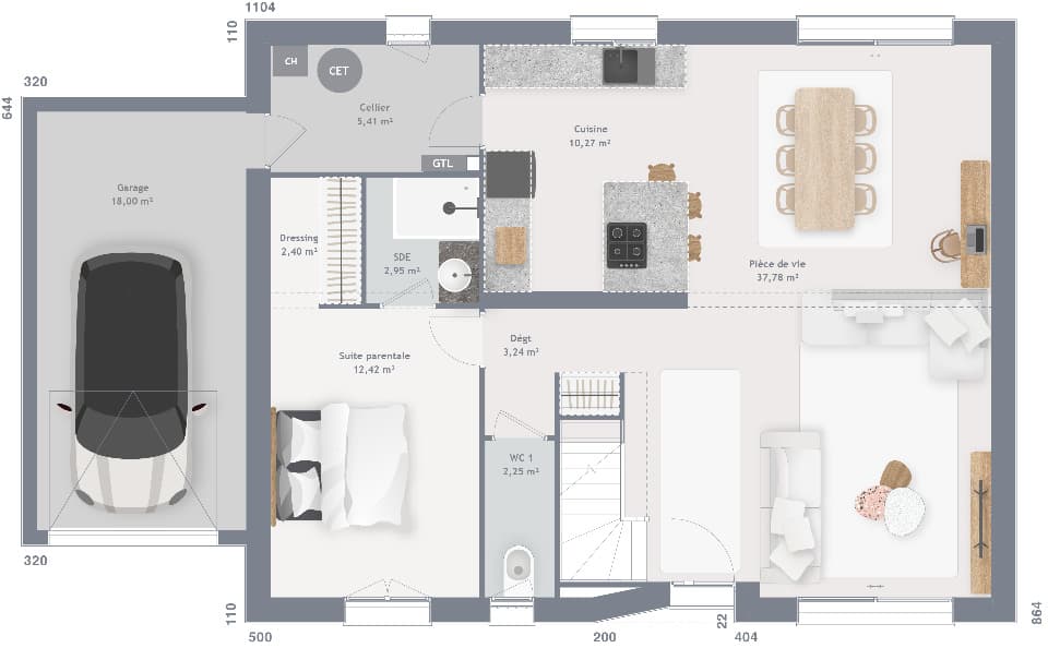
À Asfeld, maison neuve de 115m² avec 4 chambres à acheter. Le modèle de maison qui vous est présenté est Horizon 115 GA. L'intérieur est constitué d'un espace de vie ouvert sur la cuisine, une salle de bains, deux wc, 4 chambres (dont une suite parentale avec dressing et salle d'eau privative au rez-de-chaussée), et un cellier. La maison dispose également d'un garage accolé communiquant par la maison via le cellier. La construction traditionnelle aux normes RE2020 de la maison est réalisée en brique et l'ensemble des matériaux utilisés sont de qualité afin de vous assurer un investissement durable. Terrain de 1350m2 à Asfeld parfaitement plat et idéalement situé au calme et proche de toutes les commodités. Asfeld est une commune recherchée pour son axe direct, ses commodités (écoles jusqu'au collège, commerces, nombreuses associations sportives et culturelles pour la famille) la commune est proche de Guignicourt, Brienne Sur Aisne, Poilcourt Sydney, Avaux, Vieux Lès Asfeld, Houldicourt, Roizy et Reims. Pour plus de renseignements vous pouvez me contacter , Nicolas GUILLAUME de l'agence Maisons France Confort de Cormontreuil au 07.77.79.23.59


















