

- Prix
- 332 000 €
Maison neuve • Cysoing (59)
- Nom et prix
- Terrain à bâtir () • 332 000 €
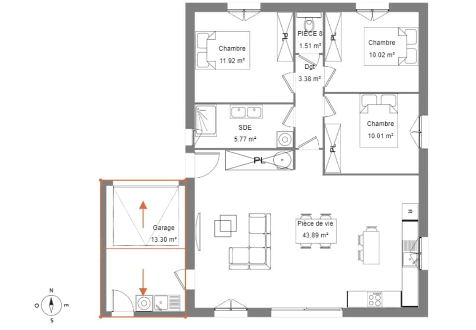
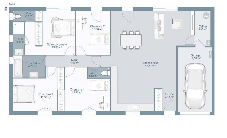
Construction d'une maison à Cysoing IDÉALEMENT SITUÉE - À 8 km de la frontière belge et à 14 km de Lille, nous vous présentons ce modèle de maison de plain-pied à construire, idéalement située dans Cysoing (59830). Conçue de plain-pied, elle dispose de quatre chambres, d'une cuisine et de deux salles de bains. La maison est neuve. Le terrain du bien s'étend sur 689 m². Elle se trouve dans un secteur attractif. Cinq établissements scolaires sont implantés à moins de 10 minutes à pied, tout comme une crèche. Niveau transports, il y a 10 gares à moins de 10 minutes en voiture. Quatre autoroutes et la nationale N227 sont accessibles à moins de 9 km. On trouve des commerces, trois boulangeries, deux supermarchés, une boucherie charcuterie et un bureau de poste dans les environs. Enfin, le marché Place de la république anime les environs. Elle est proposée à l'achat pour 332 000 €. Prenez contact avec Teddy SAVARY (tél : 06-23-32-42-75) pour plus de renseignements sur cette maison ou sur les modalités de vente.
















