

- Prix
- 283 567 €
Maison neuve • Verfeil (31)
- Nom et prix
- Terrain à bâtir Verfeil (31590) • 283 567 €
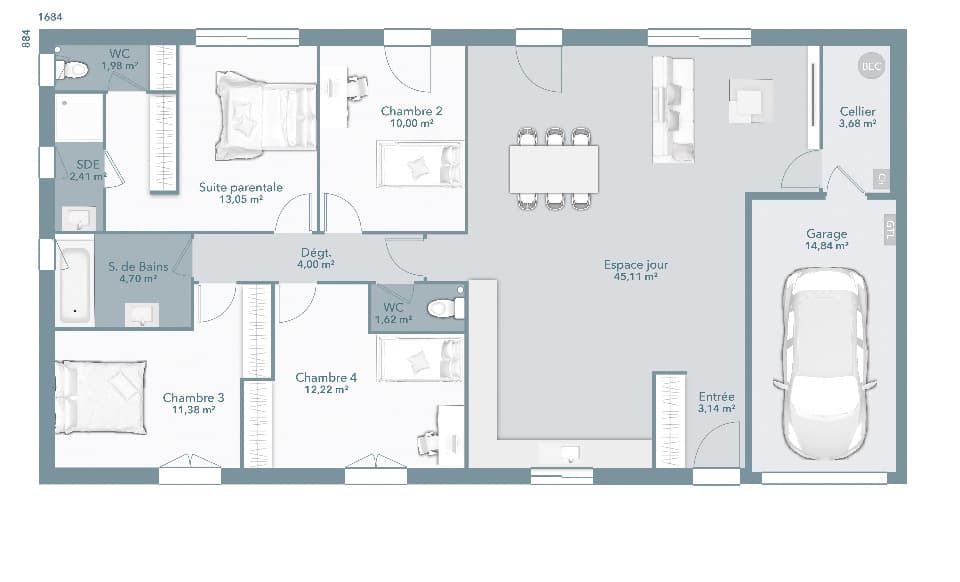
'Votre agence Maisons France Confort d'Aucamville vous propose ce beau projet maison + terrain sur la commune de VERFEIL Avec sa façade sobre et élégante, cette maison est conçue de manière ingénieuse et fonctionnelle, les volumes sont optimisés pour que chaque membre de la famille puisse avoir son propre cocon. Le grand volume de l'espace de vie dessert la cuisine, le salon et la salle à manger, on retrouve également un cellier et un garage pour la zone jour. Du côté nuit, ce plan vous propose 3 chambres, une salle de bains et une chambre parentale avec salle d'eau et dressing privés en option. prix : 283.567.€ HF Pour toutes informations, contactez l'agence MAISONS FRANCE CONFORT d'Aucamville au 05.34.43.84.38.'



















