

- Prix
- 336 000 €
Maison neuve • Mus (30)
- Nom et prix
- Terrain à bâtir Mus (30121) • 336 000 €
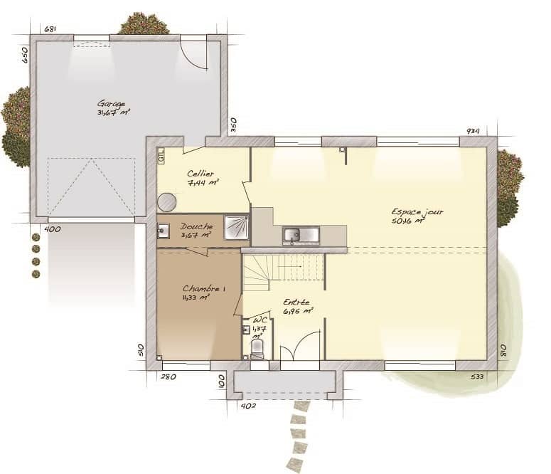
Maison Amandine de 100 m² proposée ici sur 400 m² de terrain. Elle dispose de 3 chambres dont la suite parentale, une salle de bain équipée, wc séparés, cuisine ouverte sur séjour, un cellier et le garage accolé. RE2020 + GARANTIES CCMI COMPRISES. N'hésitez pas à prendre contact avec notre agence Maisons de Manon Caissargues : 04 66 36 00 24 pour toute question. L'école Primaire les Amandiers à moins de 10 minutes. Niveau transports, on trouve huit gares à moins de 10 minutes en voiture. On trouve un accès à l'autoroute A9 à 1 km. Il y a deux commerces, une boulangerie, un bureau de poste et une épicerie à proximité.
















