

- Prix
- 219 000 €
Maison neuve • Vézénobres (30)
- Nom et prix
- Terrain à bâtir Vézénobres (30360) • 219 000 €
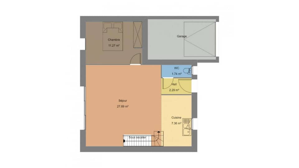
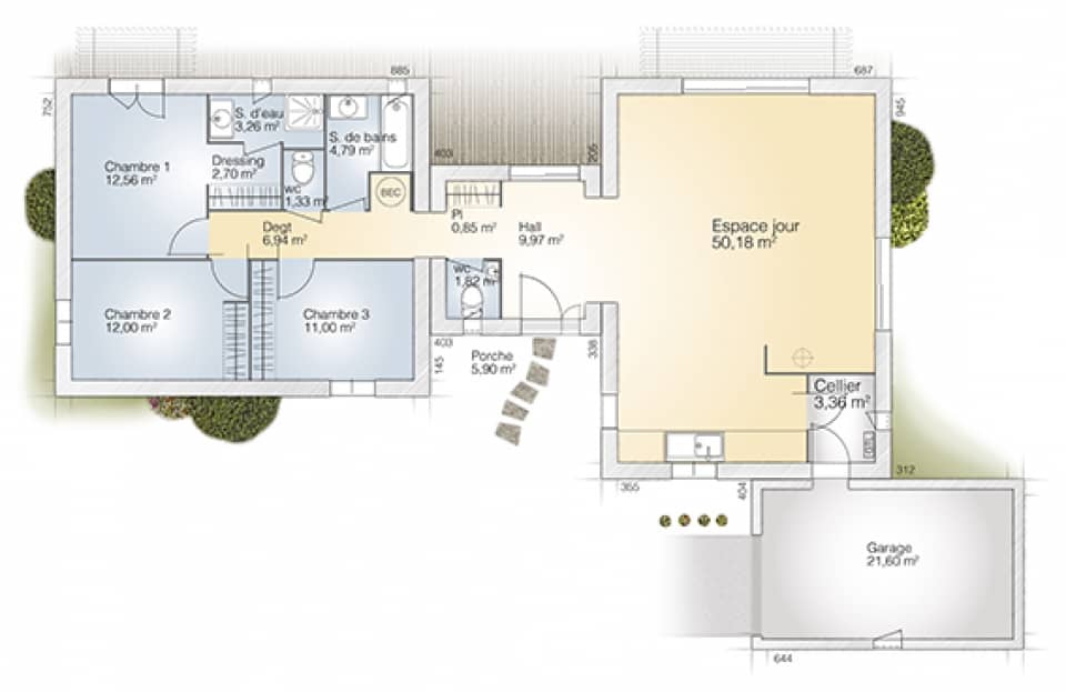
VENTE d'une maison de 4 pièces (80 m²) à Vézénobres à 15mn de Carémeau CHU PROJET MODIFIABLE SUR MESURE EMPLACEMENT PRIVILÉGI- MAISON 4 PIÈCES NEUVE En vente : localisée à deux pas de Nîmes, venez découvrir cette maison de 4 pièces de 80 m² et de 700 m² de terrain avec vue sur espace vert bénéficiant d'un emplacement privilégié dans Vézénobres (30360). Conçue de plain-pied, elle est composée de trois chambres, d'une cuisine et de deux salles de bains. Il s'agit d'une maison de plain-pied. Elle est neuve. Cette maison est située dans un quartier attractif. Des écoles maternelles et élémentaires se trouvent à moins de 10 minutes à pied, tout comme, parmi lesquelles l'École Élémentaire Emile Chabrier. Côté transports, il y a les gares Boucoiran-et-Nozières et Alès à moins de 10 minutes en voiture. La nationale N106 est accessible à 2 km. On trouve un tennis, un commerce, une boulangerie, un bureau de poste et une épicerie dans les environs. Elle est proposée à l'achat pour 219 000 €. N'hésitez pas à prendre contact avec notre agence (Eric GUIDEZ : 07-85-00-92-78) pour toute information sur la maison ou sur les modalités de vente. Faites de vos projets immobiliers une réalité avec Maisons de Manon Caissargues.
















