

- Prix
- 179 800 €
Maison neuve • Plouguerneau (29)
- Nom et prix
- Terrain à bâtir () • 179 800 €
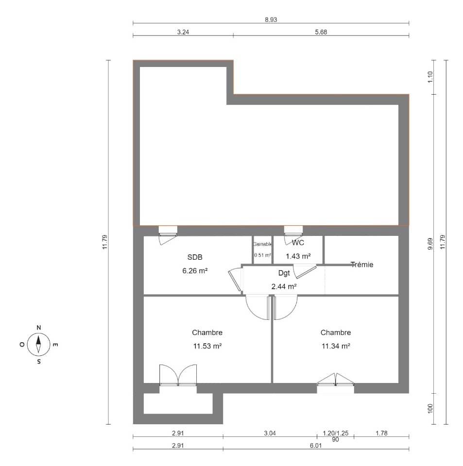
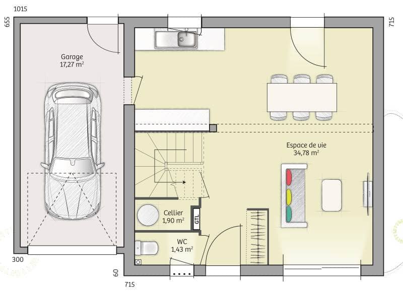
Plouguerneau : maison de 4 pièces (84 m²) à vendre. IDEAL INVESTISSEURS OU PRIMO-ACCEDANTS QUARTIER RECHERCH- MAISON 4 PIÈCES NEUVE À vendre : à quelques kilomètres de la mer et à deux pas de Brest, dans un secteur prisé de Plouguerneau (29880), découvrez cette maison de 4 pièces de 84 m² et de 426 m² de terrain. Cette maison compte 2 niveaux. Son intérieur dispose de trois chambres, d'une cuisine et d'une salle de bains. Cette maison est neuve. Cette maison est située dans un quartier convoité. Des établissements scolaires primaires y sont implantés. La nationale N12 est accessible à 18 km. Il y a une bibliothèque à quelques minutes à peine. Elle est à vendre pour la somme de 179 800 €. Prenez contact avec Jean ROPERS pour obtenir de plus amples renseignements sur la propriété. Maisons de l'Avenir Brest vous accompagne à toutes les étapes de votre projet et dans toutes vos démarches.













