

- Prix
- 340 174 €
Maison neuve • La Pomarède (11)
- Nom et prix
- Terrain à bâtir La Pomarède (11400) • 340 174 €
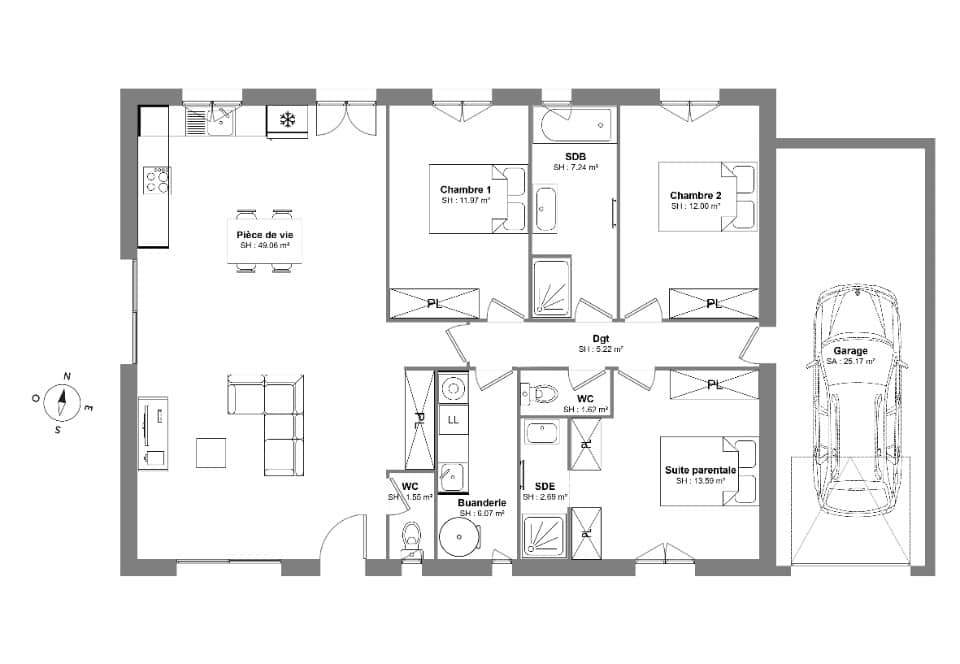
Notre modèle Arc en Ciel de 132 m² habitable est un concept de maison moderne et unique. Sa conception vous assurera des espaces de vie jour et nuit séparés. Son architecture vous offre au rez-de-chaussée 2 chambres, une salle de bains, une buanderie, un cellier, un auvent, un garage et un bureau ouvert donnant sur une lumineuse pièce de vie ouverte de 50 m². Pour accéder à l'étage, un escalier contemporain mènera directement à votre suite parentale agrémentée d'une loggia, ce qui vous permettra de vous évader et de profiter du point de vue. Ce pavillon est à construire par Oc Résidences dans le département du Tarn, l'Aude, l'Hérault, la Haute-Garonne ainsi que les Pyrénées Orientales. Oc résidences est votre constructeur sur mesure en Occitanie.

















