

- Prix
- 275 000 €
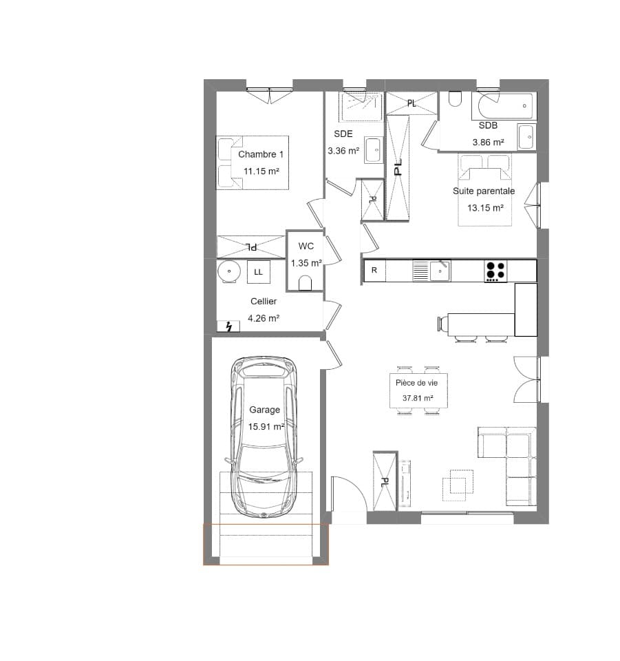
Maison neuve • Gallargues-le-Montueux (30)
- Nom et prix
- Terrain à bâtir () • 275 000 €
Petite maison optimisée de 85 m² proposée ici sur 319 m² de terrain à Gallargues le Montueux. Ce modèle Open dispose de 3 chambres, un espace de vie convivial et lumineux, une salle de bain et wc séparés, et cellier avec accès au garage. RE2020 + GARANTIES CCMI COMPRISES. Prenez contact avec notre agence Maisons de Manon Caissargues pour plus de renseignements : 04 66 36 00 24. A 20 km de la mer Méditerranée entre Nîmes et Montpellier, vous vous sentirez bien à Gallargues le Montueux ! Trois établissements scolaires sont implantés à moins de 10 minutes, tout comme dont l'École Élémentaire la Maurelle et le Collège Claude Chappe. L'autoroute A9 est accessible à 1 km. Il y a un bassin de natation, un tennis, deux boulangeries, quatre commerces, deux épiceries et un bureau de poste à quelques minutes.











