

- Prix
- 197 885 €
Maison neuve • Lassigny (60)
- Nom et prix
- Terrain à bâtir () • 197 885 €
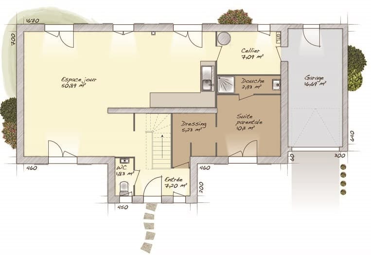
Maison de plain pied , située au coeur de Lassigny , à proximité immédiate de toutes les commodités . A L'intérieur : Chambres avec rangements intégrés , salle d'eau équipée , séjour traversant et cuisine ouverte, cellier et garage intégré . Nombreuses prestations incluses : 2 packs alarmes et domotiques , volets roulants centralisés et intégrés à la maçonnerie , carrelage dans vos pièces de vie , baie aluminium , enfin ... tout nos plans sont personnalisables et modifiables . Bénéficiez d'un accompagnement prémium : Recherche du financement ,enquéte technique du terrain ,gestion administrative . Rendez vous en agence ou à votre domicile . Le prix de cette annonce comprend : Maison+terrain+frais annexes ( raccordements , puisards , chemin d'accès +enlèvement des terres , ouvertures compteurs ) Contactez moi pour une étude gratuite et personnalisée de votre projet . VERON ANTHONY /07/77/85/58/88/

















