

- Prix
- 424 000 €
Maison neuve • Champigny-sur-Marne (94)
- Nom et prix
- Terrain à bâtir () • 424 000 €
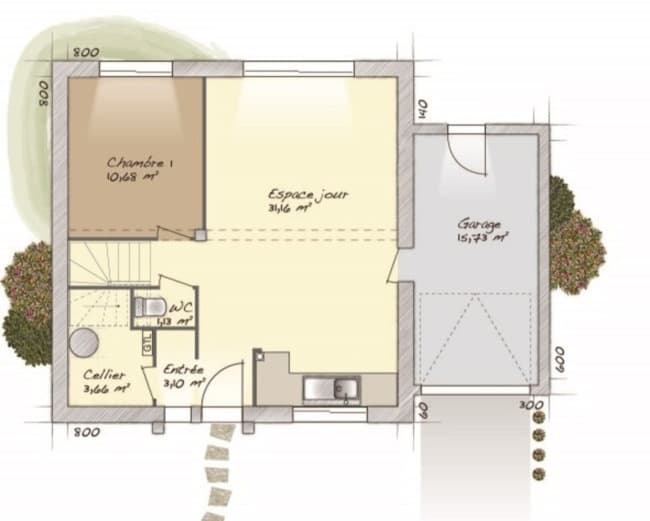
Champigny-sur-Marne : maison T6 (98 m²) en vente MAISON 6 PIÈCES NEUVE À quelques minutes de la station Les Boullereaux Champigny du RER E (20 min de Paris), nous sommes heureux de vous proposer en vente à Champigny-sur-Marne (94500), cette maison de 6 pièces de 98 m². Cette maison compte 2 niveaux. Elle offre quatre chambres, une cuisine et une salle de bains. Cette maison est neuve. Le terrain de la propriété est de 210 m². Plusieurs établissements scolaires (maternelle, élémentaire et collège) sont implantés à moins de 10 minutes à pied, tout comme quatre crèches. Niveau transports en commun, on trouve les lignes de RER E, A, D et C ainsi que 26 gares à moins de 10 minutes en voiture. Il y a un tennis, une bibliothèque, des commerces, des boulangeries, trois supermarchés, deux bureaux de poste et deux supérettes à proximité du bien. Le marché Centre-Ville anime les environs. Son prix de vente est de 424 000 €. Contactez Aurelien MONTANIER (06-24-66-88-34) pour plus d'informations sur la propriété. Concrétisez vos projets immobiliers avec Maisons Balency Saint-Maur-des-Fossés.